Back to properties

Liversidge Road, Birkenhead, Merseyside, CH42 0LS - Online Auctions

Liversidge Road, Birkenhead, Merseyside, CH42 0LS

£90,000
Residential
About this Property
2025-10-29
90000
Traditional
Residential
Description

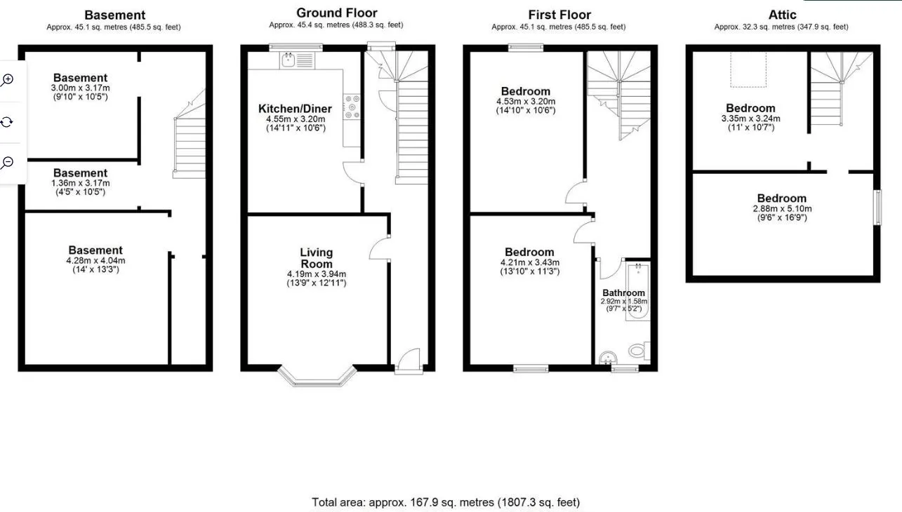
INFORMATION / PICTURES FROM THE AGENT: ** OPEN HOUSE - Wednesday 8th October 1pm - 1.30pm & Friday 10th October 11.30am - 12.30pm ** Offered for sale with no onward chain is this spacious semi-detached property is located in a popular area close to amenities and transport links. The accommodation is arranged over four floors and offers huge potential. The accommodation on the ground floor comprises; entrance hallway, lounge, kitchen-dining room. There is a back door out to the garden and a door down to the cellar. The cellar has three rooms. On the first floor there are two double bedrooms and a bathroom and on the second floor are two more double bedrooms. Early viewing is essential. Ground Floor - Hallway - Lounge - 5.03m x 3.89m (16'6" x 12'9") - Kitchen-Dining Room - 4.55m x 3.20m (14'11" x 10'6") - First Floor - Landing - Bedroom One - 4.19m x 3.40m (13'9" x 11'2") - Bedroom Two - 4.52m x 3.18m (14'10" x 10'5") - Bathroom - Second Floor - Landing - Bedroom Three - 5.11m x 2.87m (16'9" x 9'5") - Bedroom Four/Dressing Room - 3.33m x 3.20m max (10'11" x 10'6" max) - Cellar - Room One - 5.33m x 3.96m (17'6" x 13') - Room Two - 3.12m x 3.23m (10'3" x 10'7") - Room Three - 3.23m x 1.32m (10'7" x 4'4") - INFORMATION FROM THE AUCTION HOUSE: Please note that all marketing including property description and imagery has been provided by the introducing agent. The Auction Company strongly recommends interested parties arrange an in-person viewing (strictly by appointment only) to fully appreciate all the property has to offer and to satisfy your own requirements. Method of Auction: - This is a ‘Timed Online’ auction, meaning bidding takes place online. - Visit The Auction Company website find the property details and the bidding method. - How long the bidding process is open for, is clearly stated as is the closing date and end time. Registering to bid: - In order to bid on the property, you are required to register your details. - You will be required to undertake identity checks as this is the law. - You will be required to register your payment details. This is to ensure you have funds available to settle the Buyer’s Premium and deposit. - A hold/shadow will be placed on £1,000 for this. - If you place a bid, it is deemed you have read, understood and agree to the Terms and Conditions of The Auction Company in their entirety. - T&Cs, Buyers Terms and Special Auction Conditions are found on each property details. You must read these before bidding. Auction type - Traditional Method of Auction (Unconditional): - If you are the highest bidder, you must exchange legally binding contracts for the sale when the auction for the property comes to an end and complete with 28 days. - The held amount of £1,000 will be deducted from your account and will form part of the Buyer’s Premium payment. - You will be contacted within 2 hours to settle the deposit amount payable and any remaining Buyers Premium due. Failure to make the payments you will be in breach of our auction terms. ** NO CARD PAYMENTS EXCEPTED ** TO PAY ANY REMAINING BALANCES ** - The Buyer’s Premium is set at 4% + VAT (£5,000 + VAT minimum). This is non-refundable and does not constitute towards the cost of the property. - The deposit amount is 10% of the sale price and will be collected within 2 hours of the close of auction. Legal Pack: - The legal pack is a set of documents that relate to the property and the sale of it. - It is highly recommended that you download and consider the provided legal pack for the property you are interested in bidding on. - It is also advisable that you seek legal advice regarding the content of the legal pack, to ensure certainty before bidding. - To download the legal pack, search for The Auction Company website and find the property of interest. There is a tab for ‘legals’ where you will find the documents. To download, you must create a free account with The Auction Passport. - The legal pack can change at any time up until the auction starts so you must check for the most recent version of the legal pack. At the point of placing your bid, you are deemed to have read the legal pack in its entirety, including any changes. Failure to check for changes to the legal pack will not be a valid reason for withdrawing from the sale. Special Conditions of Sale: - These conditions are not set by The Auction Company. They are conditions stipulated by the seller and are contractually binding. - You are taken to have read and accepted these at the point of bidding, even if you have not done so. The Special Conditions of Sale are available to read in the legal pack. Council Tax Band A

Location
Liversidge Road, Birkenhead, Merseyside, CH42 0LS - Online Auctions
More Information
Not Specified
Liversidge Road
Planing Authority
Wirral LPA

Interested in this lot?

GO TO THIS LOT

More Listings from this Auctioneer