PurplebricksPurplebricks Online Auctions, powered by GOTO Auctions, delivers a modern, transparent way to buy or sell property 24/7 online, fast and with the confidence of a digitally driven auction.
Read more Read more72 Royden Road Billinge, Wigan, Lancashire, WN5 7LP
PurplebricksPurplebricks Online Auctions, powered by GOTO Auctions, delivers a modern, transparent way to buy or sell property 24/7 online, fast and with the confidence of a digitally driven auction.
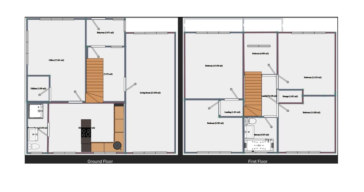
Read more Read moreThis property is an extended semi-detached home with five bedrooms. It features an entrance hall, a living/dining room, a family room/home office, a modern fitted kitchen, and a ground floor shower room. The first floor includes five bedrooms and a family bathroom. Externally, there are front and rear gardens and driveway parking. The property has gas central heating and UPVC double glazing. The energy performance certificate (EPC) rating is currently 74, with a potential rating of 83.

No Affiliation: PropertyAuctions.io is an independent service and is not affiliated with, endorsed by, or connected to any auction house, auctioneer, or property owner listed on this site.
Information Accuracy: All property information, including auction dates, descriptions, images, and pricing, is provided for informational purposes only and may contain errors or be outdated. We make no guarantee regarding accuracy or completeness.
Third-Party Content: Property images and descriptions are sourced from publicly available information. We do not claim ownership of content that may be copyrighted by auction houses or other parties.
Your Responsibility: You must verify all information directly with the relevant auction house before bidding or making any decisions. PropertyAuctions.io is not liable for any errors, omissions, or losses arising from use of this website.
Report Issues: If you spot an error or have copyright concerns, please report it here.