Shoulder of Mutton, 66 Birmingham Road, Rowley Regis, B65 9BA

Shoulder of Mutton, 66 Birmingham Road, Rowley Regis, B65 9BA

£380,000
Commercial
Auction Ended
About this Property
18 June 2024
Auction Ended
£380,000
Traditional
Commercial
Description

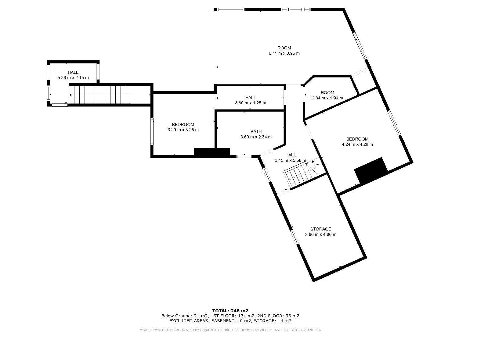
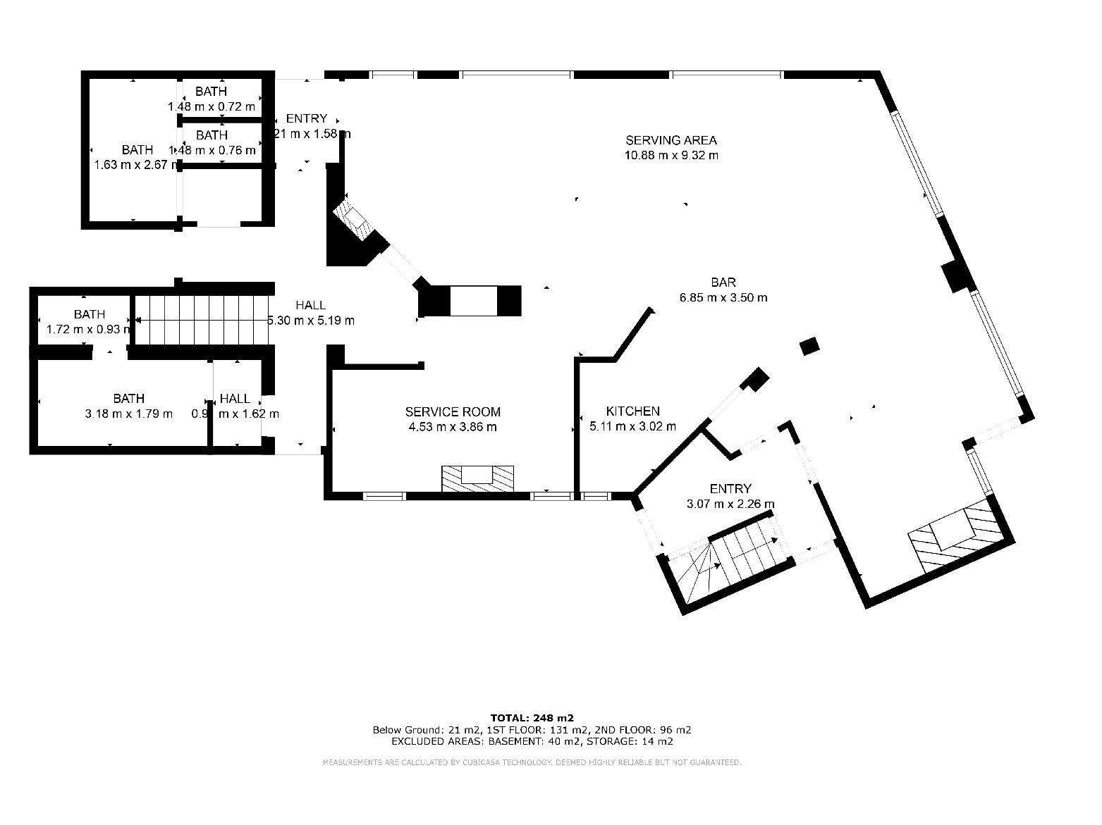
An end of terrace public house with a basement/cellar, ground floor trading area/bar, and first floor staff accommodation including bedrooms, bathroom/WC, and a function room. The property has a beer garden and parking area at the rear. It is a two-storey building with a total area of approximately 2,669 square feet.

Location
Map location for Shoulder of Mutton, 66 Birmingham Road, Rowley Regis, B65 9BA
More Information
Freehold
Planning Authority
Sandwell LPA

Interested in this lot?

GO TO THIS LOT

More Listings from this Auctioneer

Other listings nearby

DISCLAIMER

No Affiliation: PropertyAuctions.io is an independent service and is not affiliated with, endorsed by, or connected to any auction house, auctioneer, or property owner listed on this site.

Information Accuracy: All property information, including auction dates, descriptions, images, and pricing, is provided for informational purposes only and may contain errors or be outdated. We make no guarantee regarding accuracy or completeness.

Third-Party Content: Property images and descriptions are sourced from publicly available information. We do not claim ownership of content that may be copyrighted by auction houses or other parties.

Your Responsibility: You must verify all information directly with the relevant auction house before bidding or making any decisions. PropertyAuctions.io is not liable for any errors, omissions, or losses arising from use of this website.

Report Issues: If you spot an error or have copyright concerns, please report it here.

View Full Terms and Conditions