Back to properties

2 bed Apartment

Montpellier Spa Road, CHELTENHAM, Gloucestershire, GL50 1UL

£225,000
Residential
About this Property
225000
Modern
Residential
Description

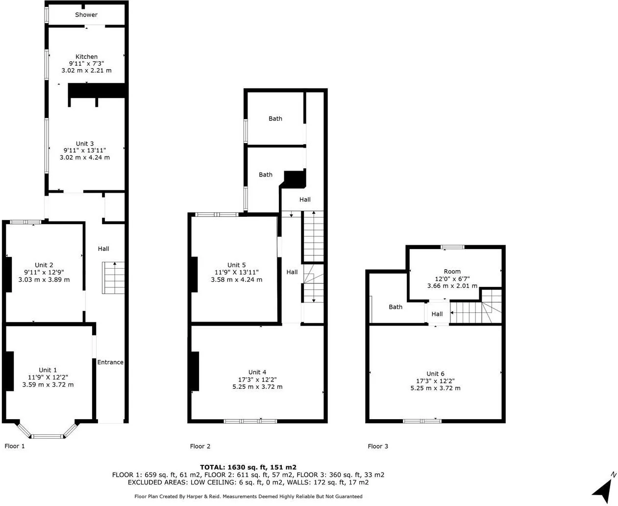
This top-floor duplex apartment located on Montpellier Spa Road in Cheltenham is a desirable property with a prime location. Montpellier Spa Road is a prestigious and sought-after address right at the heart of Regency Montpellier in Cheltenham. The terrace is a mix of Regency and Pastiche-style houses and apartments. The properties on this road offer beautiful south-facing views overlooking Montpellier Gardens. Montpellier Gardens is a vibrant area that features amenities such as tennis courts, a bandstand, an art gallery, a café, and is a lovely place to sit all year round. Additionally, this location is within walking distance of excellent schools, including Cheltenham College and Cheltenham Ladies College. The location, whilst off the main roads, is a one way street, just minutes walk from the bars, boutiques and shops in the Montpellier district, then down the Promenade, into town for the full shopping experience. This duplex apartment is housed within a Grade II listed building and occupies the top two floors. The property offers approximately 921 square feet of living space. Upon entering the apartment, you'll find an entrance hall with an understairs cupboard. From here, you have access to the kitchen, living room, and master bedroom. The galley-style kitchen features a breakfast bar and a range of units. It offers functionality while maintaining a pleasant aesthetic. The living room is positioned to enjoy views over Montpellier Gardens and boasts a feature fireplace, adding character and charm to the space. To the rear of the property, the master bedroom comes with two sets of built-in wardrobes and another feature fireplace. This room offers comfort and storage space. Heading up the stairs to the top floor, you'll find a landing area that services a dual-aspect bedroom with built-in wardrobes. The landing is large enough to locate a desk for working from home. Additionally, there is a bathroom on this floor, which features a separate bath and shower for added convenience. Residents of this property benefit from permit parking (apply to Cheltenham Borough Council), making it convenient for those with vehicles. In summary, this duplex apartment in Montpellier Spa Road is a well-located, spacious, and characterful property offering comfortable living spaces and stunning views over Montpellier Gardens. Its proximity to amenities, schools, and the vibrant Montpellier area adds to its appeal. Service charge £88 per month. Ground rent £0. Auctioneer comments This property is for sale by the Modern Method of Auction, meaning the buyer and seller are to Complete within 56 days (the "Reservation Period"). Interested parties personal data will be shared with the Auctioneer (iamsold). If considering buying with a mortgage, inspect and consider the property carefully with your lender before bidding. A Buyer Information Pack is provided. The winning bidder will pay £349.00 including VAT for this pack which you must view before bidding. The buyer signs a Reservation Agreement and makes payment of a non-refundable Reservation Fee of 4.5% of the purchase price including VAT, subject to a minimum of £6,600.00 including VAT. This is paid to reserve the property to the buyer during the Reservation Period and is paid in addition to the purchase price. This is considered within calculations for Stamp Duty Land Tax. Services may be recommended by the Agent or Auctioneer in which they will receive payment from the service provider if the service is taken. Payment varies but will be no more than £450.00. These services are optional.

Location
More Information
Leasehold
Montpellier Spa Road
flat-apartment
Planing Authority
Cheltenham LPA

Interested in this lot?

GO TO THIS LOT

More Listings from this Auctioneer

Other listings nearby