Back to properties

West Kirby, Wirral, Merseyside, CH48 0RB - Online Auctions

119-121 Banks Road West Kirby, Wirral, Merseyside, CH48 0RB

£880,000
Commercial
About this Property
2026-01-12
880000
Traditional
Commercial
Description

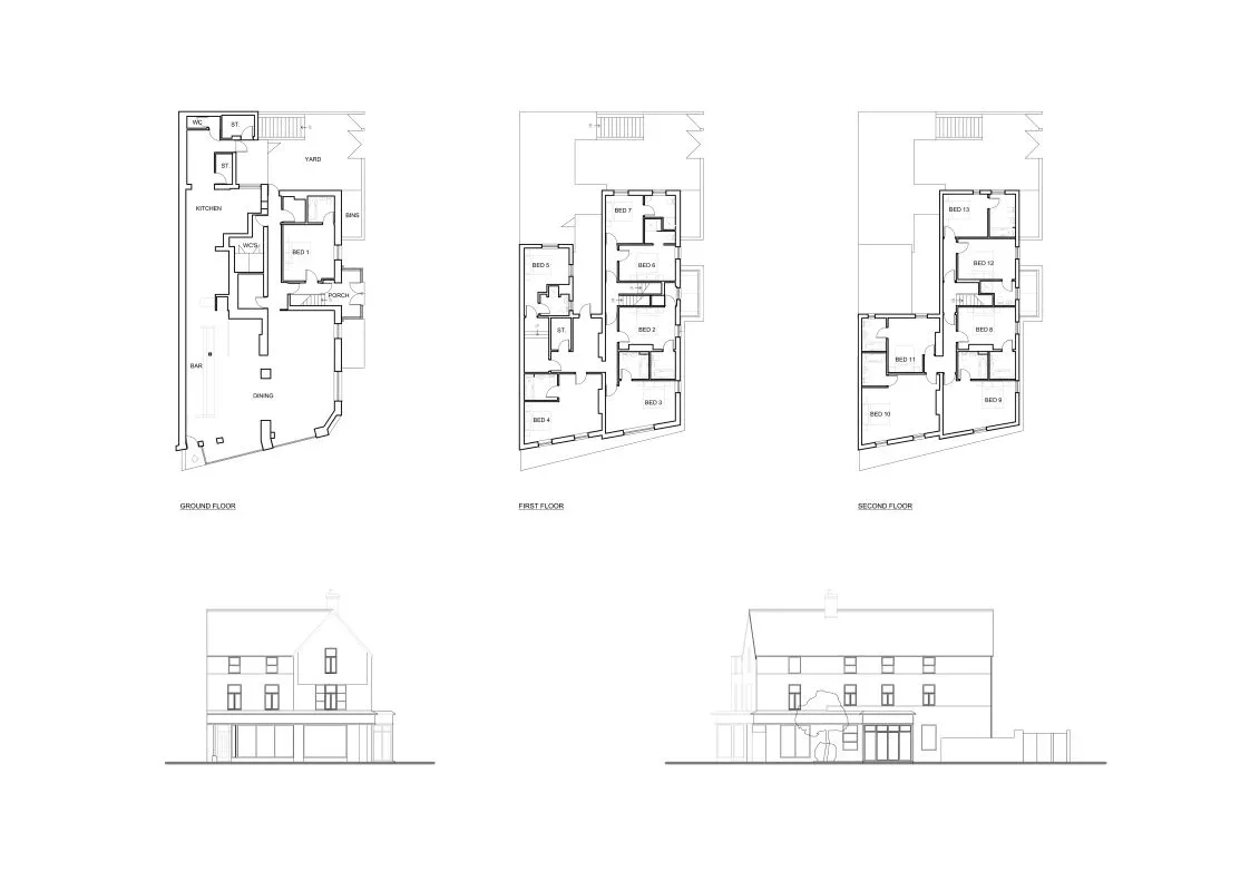
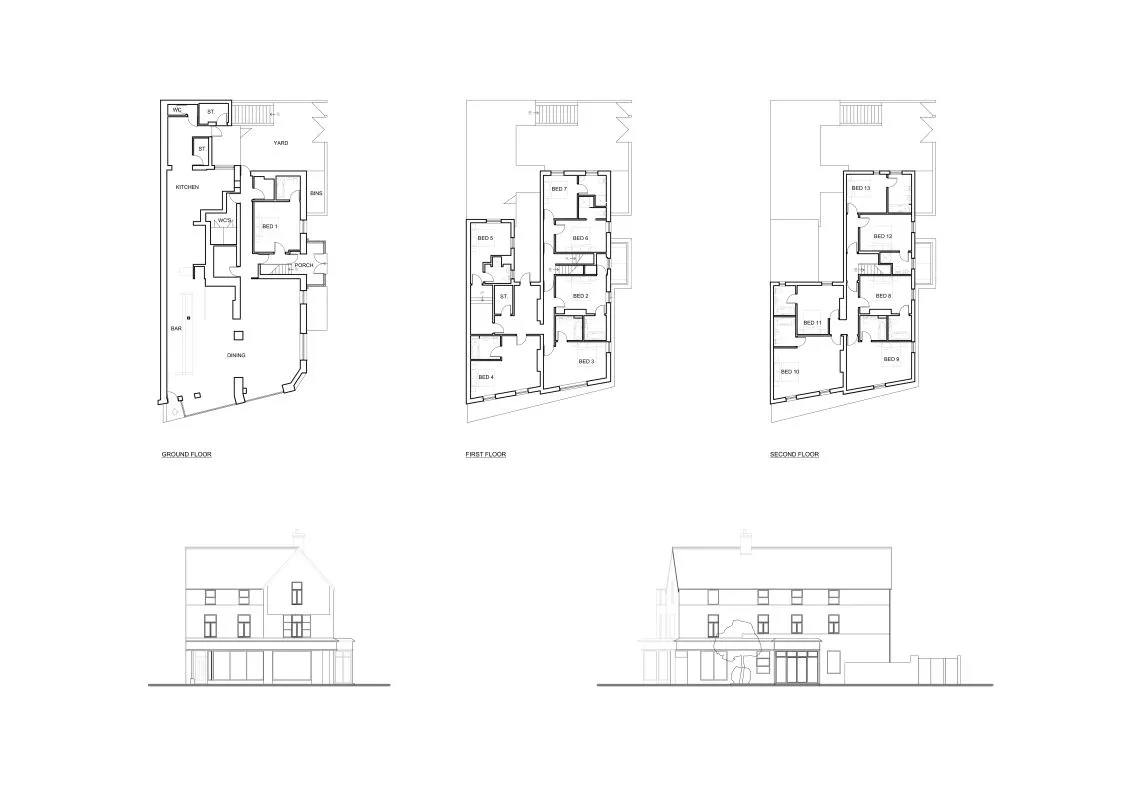
CURRENT BLOCK OF FLATS AND RESTURANT WITH CONVERSION OPPORTUNITY TO HOTEL FOR SALE BY AUCTION 12TH - 13TH JANUARY FOR SALE VIA ONLINE AUCTION ON MONDAY 12TH JANUARY AT 1PM UNTIL TUESDAY 13TH JANUARY 1PM VIEWING BY APPOINTMENT ONLY FANTASTIC INVESTMENT & DEVELOPMENT OPPORTUNITY – FULL PLANNING APPROVED FOR HOTEL CONVERSION Auction House is pleased to present an exceptional opportunity to acquire a prime property in the heart of West Kirby — one of the Wirral’s most desirable and vibrant coastal locations. Property Overview: Currently operating as a well-established restaurant with self-contained apartments, this property is being sold with vacant possession and full planning approval for conversion into a boutique-style hotel. Approved Development Plans Include: • 13 spacious guest bedrooms • A stylish bar area • A fully equipped dining kitchen Location Highlights: • Situated on popular Banks Road, West Kirby • In close proximity to beaches, shops, cafés, and West Kirby Marine Lake • Strong local and tourist footfall all year round • High demand area for both leisure and business accommodation This is a rare chance to invest in a property with enormous potential in a thriving seaside town. Whether you're an experienced hotel operator, property investor, or developer, this opportunity combines location, demand, and approved plans to offer impressive return potential. Planning Application Reference Number: APP/24/00576 Full planning permission for 13 en-suite double bedrooms. Average Room Rate in the Area: £130 per night* *Rates may vary depending on season and local events. *Currently arranged as residential separate apartments. *Could be residential units/dwellings retained, dependent upon end user requirements.

Location
West Kirby, Wirral, Merseyside, CH48 0RB - Online Auctions
More Information
Freehold
Banks Road
Planning Authority
Wirral LPA
Sold Price History
18 Aug 2025Withdrawn Lot Auction House Staffordshire£900,000

Interested in this lot?

GO TO THIS LOT

More Listings from this Auctioneer

Other listings nearby