Loch Linnhe House, Achintore Road, Fort William PH33 6RW

Loch Linnhe House, Achintore Road, Fort William PH33 6RW

£395,000
Commercial
Withdrawn
About this Property
27 March 2025
Withdrawn
£395,000
Traditional
Commercial
Description

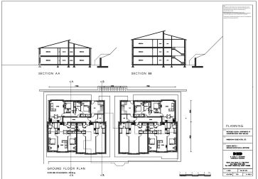
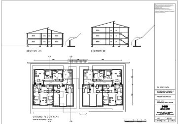
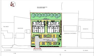
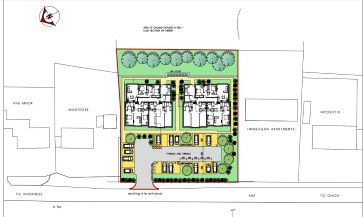
The property is a former hotel located in Fort William, featuring 23 double bedrooms with en-suite facilities. It has not been operational since 2020 and is being sold with approved planning permission to demolish the existing structure and construct 14 two-bedroom flats across two blocks. The property is freehold and is situated near local amenities including shops, restaurants, and schools. The area offers various sporting and recreational activities, with a waterway in front of the property.

Location
Map location for Loch Linnhe House, Achintore Road, Fort William PH33 6RW
More Information
Freehold
Planning Authority
Highland
Address History
28 Nov 2024Auction Ended Lot Auction House Scotland£395,000
06 Feb 2025Withdrawn Lot Auction House Scotland£395,000
15 May 2025Withdrawn Lot Auction House Scotland£395,000
05 Jun 2025Withdrawn Lot Auction House Scotland£395,000
21 Aug 2025Withdrawn Lot Auction House Scotland£395,000

Interested in this lot?

GO TO THIS LOT

More Listings from this Auctioneer

Other listings nearby

DISCLAIMER

No Affiliation: PropertyAuctions.io is an independent service and is not affiliated with, endorsed by, or connected to any auction house, auctioneer, or property owner listed on this site.

Information Accuracy: All property information, including auction dates, descriptions, images, and pricing, is provided for informational purposes only and may contain errors or be outdated. We make no guarantee regarding accuracy or completeness.

Third-Party Content: Property images and descriptions are sourced from publicly available information. We do not claim ownership of content that may be copyrighted by auction houses or other parties.

Your Responsibility: You must verify all information directly with the relevant auction house before bidding or making any decisions. PropertyAuctions.io is not liable for any errors, omissions, or losses arising from use of this website.

Report Issues: If you spot an error or have copyright concerns, please report it here.

View Full Terms and Conditions