Back to properties

2 bedroom mid terraced property in Wolverhampton

45 Myatt Avenue, Wolverhampton, WV2 2ED

£85,000
Residential
About this Property
2025-10-23
85000
Traditional
Residential
Description

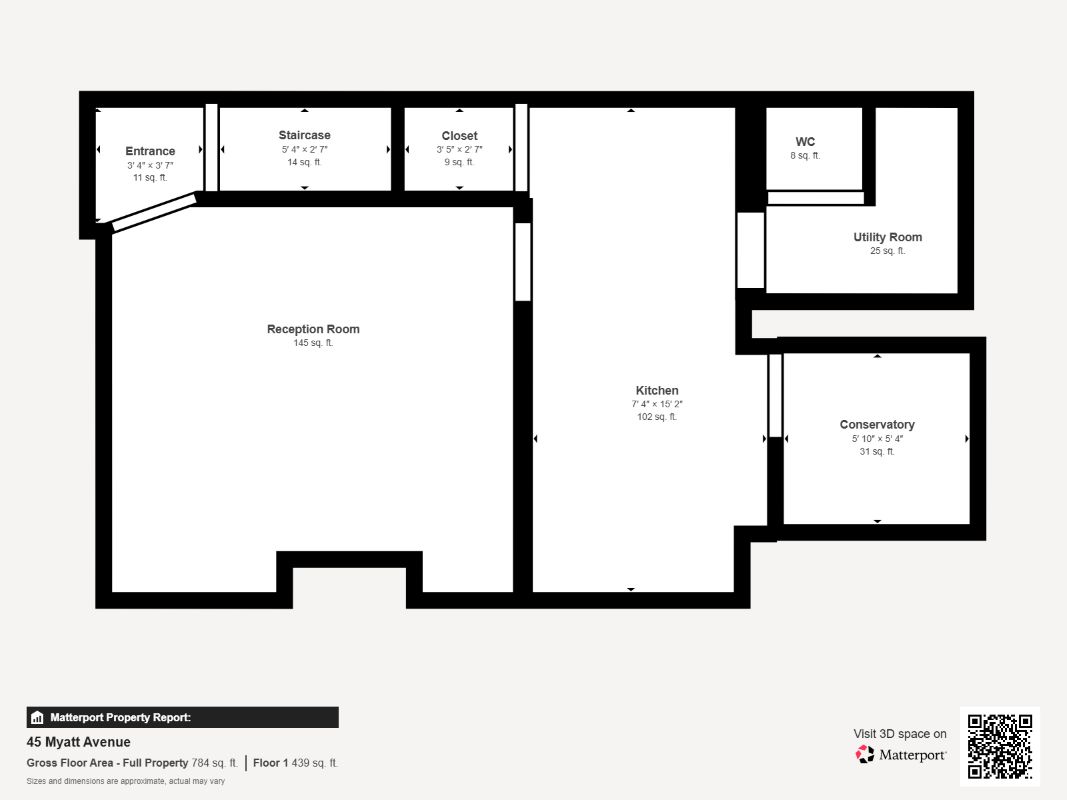
2 bedroom mid terraced property. Ground Floor: Small Entrance Hall, Living Room, Kitchen, Utility/WC, Conservatory. First Floor: Landing, Two Bedrooms, Shower Room/WC. Front and Rear Gardens, off-road Parking. Gas fired central heating system and double glazing. Condition: in need of modernisation. Tenure: Freehold.

Location
2 bedroom mid terraced property in Wolverhampton
More Information
Freehold
Myatt Avenue
Planning Authority
Wolverhampton LPA
Sold Price History
19 Jun 1998Sold£17,000
10 Dec 2025Available Lot Bond Wolfe£29,000

Interested in this lot?

GO TO THIS LOT
DISCLAIMER

No Affiliation: PropertyAuctions.io is an independent service and is not affiliated with, endorsed by, or connected to any auction house, auctioneer, or property owner listed on this site.

Information Accuracy: All property information, including auction dates, descriptions, images, and pricing, is provided for informational purposes only and may contain errors or be outdated. We make no guarantee regarding accuracy or completeness.

Third-Party Content: Property images and descriptions are sourced from publicly available information. We do not claim ownership of content that may be copyrighted by auction houses or other parties.

Your Responsibility: You must verify all information directly with the relevant auction house before bidding or making any decisions. PropertyAuctions.io is not liable for any errors, omissions, or losses arising from use of this website. Report Issues: If you spot an error or have copyright concerns, please report it here.

View Full Terms and Conditions

More Listings from this Auctioneer

Other listings nearby