Chapel Court, 204 Fleetwood Road North, Thornton-Cleveleys, Lancashire, FY5 4BJ

Chapel Court, 204 Fleetwood Road North, Thornton-Cleveleys, Lancashire, FY5 4BJ

£395,000
Commercial
Available
About this Property
2026-01-27
Available
£395,000
Traditional
Commercial
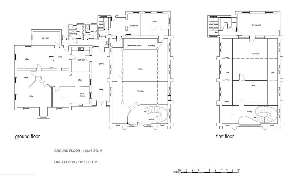
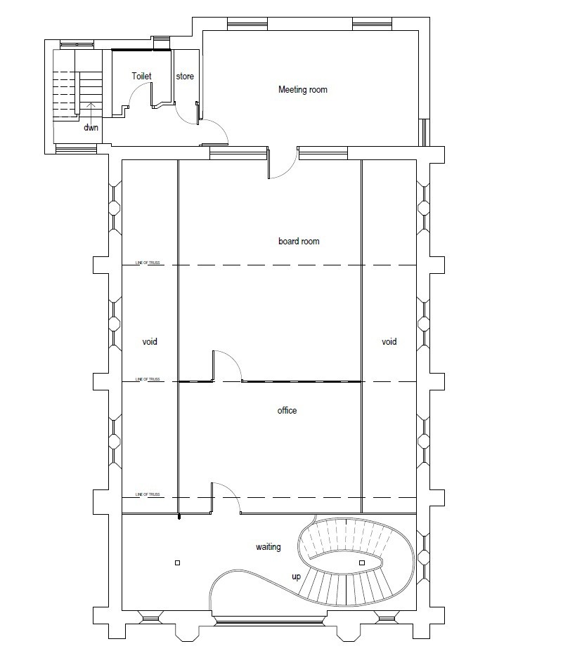
Description

The property consists of high specification offices covering approximately 400 square meters (4,305 square feet) within a former church, converted to provide both cellular and open-plan accommodation over ground and first floors. It includes private parking for approximately 8 vehicles and is located less than 1 mile from a town center, at the junction of Fleetwood Road North and Trunnah Road, with access to nearby areas and the M55 motorway. The property is held freehold under title number LAN97855.

Location
Chapel Court, 204 Fleetwood Road North, Thornton-Cleveleys, Lancashire, FY5 4BJ
More Information
Freehold
Fleetwood Road North
Planning Authority
Wyre LPA
Property History
26 Nov 2025Withdrawn Lot Pugh & Company Limited£395,000
26 Nov 2025Withdrawn Lot Mark Jenkinson£395,000
10 Dec 2025Withdrawn Lot Pugh & Company Limited£395,000
10 Dec 2025Withdrawn Lot Mark Jenkinson£395,000
27 Jan 2026Available Lot Mark Jenkinson£395,000

Interested in this lot?

GO TO THIS LOT
DISCLAIMER

No Affiliation: PropertyAuctions.io is an independent service and is not affiliated with, endorsed by, or connected to any auction house, auctioneer, or property owner listed on this site.

Information Accuracy: All property information, including auction dates, descriptions, images, and pricing, is provided for informational purposes only and may contain errors or be outdated. We make no guarantee regarding accuracy or completeness.

Third-Party Content: Property images and descriptions are sourced from publicly available information. We do not claim ownership of content that may be copyrighted by auction houses or other parties.

Your Responsibility: You must verify all information directly with the relevant auction house before bidding or making any decisions. PropertyAuctions.io is not liable for any errors, omissions, or losses arising from use of this website. Report Issues: If you spot an error or have copyright concerns, please report it here.

View Full Terms and Conditions

More Listings from this Auctioneer

Other listings nearby