Back to properties

Portsmouth Road, Woolston, 0 Bedroom Property from Pearsons Estate Agents

portsmouth road, woolston

£95,000
Mixed Use
About this Property
2025-12-10
95000
Traditional
Mixed Use
Description

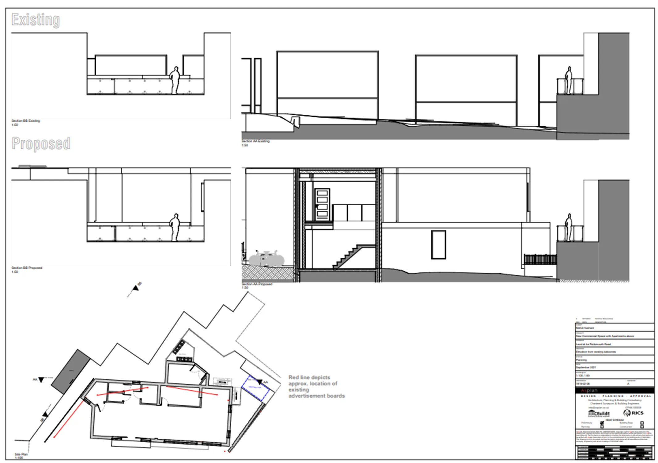
For Sale by Public Auction on 9th July 2025 at The Brooks Suite, Silverlake Stadium, Stoneham Lane, Eastleigh, Hampshire, SO50 9HT. Field Palmer are delighted to offer this fantastic development opportunity to create a new two storey dwelling. This parcel of land has planning approval for two different buildings. The first is a two storey building containing 2x one bedroom flats and 1x two bedroom flat. The other is two storey building to contain 1x two bedrooom flat and commercial unit (Use Class E). Buyers are advised to satisfy all enquiries regarding the planning application, prior to bidding. The land currently has 5 advertising boards on it. 22/00909/OUT | Redevelopment of the site. Erection of a 2-storey building to contain 2x1 and 1x2 bed flats 22/00910/OUT | Redevelopment of the site. Erection of a 2-storey building to contain 1x2 bed flat and commercial unit (Use Class E) Location Situated in the heart of Woolston's main shopping precinct, Portsmouth Road is conveniently positioned only 0.2 miles from the Woolston Train Station and Crest Nicholson's well-designed development of Centenary Quay. The lively landmark is home to a selection of drinking & eating establishments, beauty salon, library, 24/7 gym and other facilities in the immediate area. Although you can spend most days relaxing by the river or seeking the sun on the nearby pebble beach (Weston Shore), the fast-paced city of Southampton is just a stone’s throw away where you can enjoy a hearty meal in a traditional English pub or treat yourself to some fine dining in a Michelin star restaurant in Ocean Village. Southampton is home to West Quay, one of the south’s biggest shopping destinations. ADDITIONAL FEES: Buyers Admin Fee: £600 inc VAT (£500 + VAT), payable on exchange of contracts. Disbursements: Please see legal pack for any disbursements listed that may become payable by the purchaser on completion. MONEY LAUNDERING PROCEDURES IN ACCORDANCE TO THE ABOVE, PLEASE BE ADVISED, THAT IF YOU INTEND TO BID ON THIS PROPERTY, THEN YOU WILL BE REQUIRED TO PROVIDE TWO FORMS OF ID (ONE PHOTO-TYPE). IF, YOU ARE INTENDING TO BID ON BEHALF OF A THIRD PARTY, THEN WE WOULD REQUIRE BOTH ID FOR YOURSELF, PLUS A CERTIFIED COPY OF PHOTO ID FOR THE INTENDED PURCHASER. PLEASE CONTACT YOUR LOCAL BRANCH, www.fieldpalmer.com FOR FURTHER DETAILS.

Location
Portsmouth Road, Woolston, 0 Bedroom Property from Pearsons Estate Agents
More Information
Freehold
Portsmouth Road
Planing Authority
Southampton LPA

Interested in this lot?

GO TO THIS LOT

More Listings from this Auctioneer

Other listings nearby