Back to properties

23 Islet Park Drive, Maidenhead, SL6 8LF

23 Islet Park Drive, Maidenhead, SL6 8LF

£750,000
Residential
About this Property
2023-05-10
750000
Traditional
Residential
Description

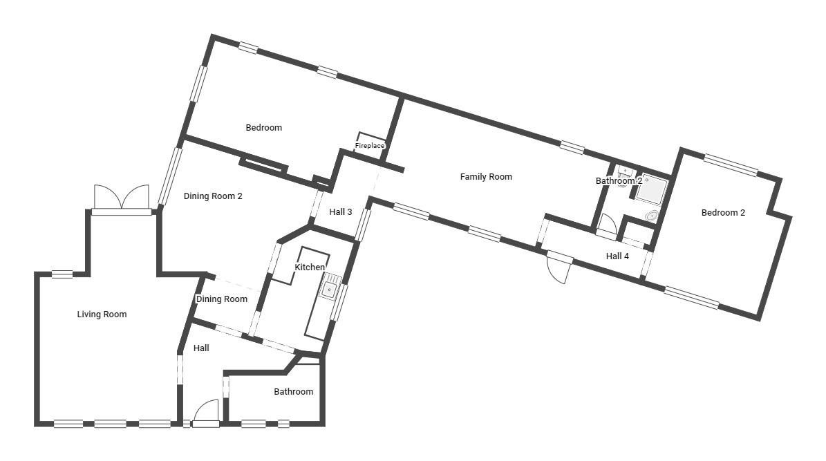
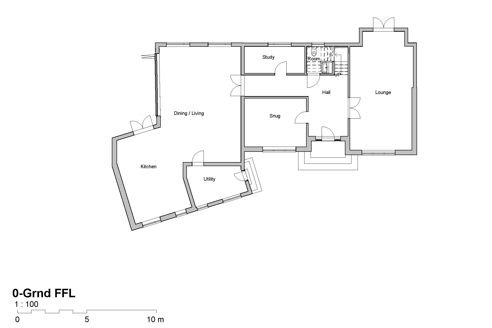
Dating back to 1888, being formally a bullpen and stable, 23 Islet Park Drive requires refurbishment and extension (planning consent granted). The Courtyard was originally part of ‘Home Farm’ on the Islet Park estate, being the stables and bull pen for the farm. The property is tucked way down a long driveway leading to the courtyard area with parking and a detached garage to the rear is a narrow garden opening onto a larger patio area with a feature stone balustrade with stone steps and wrought iron decorative railings. To the front of the property is a large pond (not within the boundaries of the property). Planning permission has been granted for extension and conversion to create a four bedroom two storey dwelling over approximately 3308 sq ft, increasing the gross intrnal area by approximately 1950 sq ft providing an exceptionally private residence in a sought after and desirable area. Vacant.

Location
23 Islet Park Drive, Maidenhead, SL6 8LF
More Information
Freehold
Islet Park Drive
Bungalow
Planing Authority
Windsor and Maidenhead LPA
Sold Price History
15 Jul 2022Sold£670,000

Interested in this lot?

GO TO THIS LOT

More Listings from this Auctioneer

Other listings nearby