Batley Baths, Cambridge Street, Batley, West Yorkshire, WF17 5JH

Batley Baths, Cambridge Street, Batley, West Yorkshire, WF17 5JH

£318,000
Mixed Use
Sold
About this Property
27 January 2026
28 January 2026
Sold
£318,000
Traditional
Mixed Use
£318,000
Description

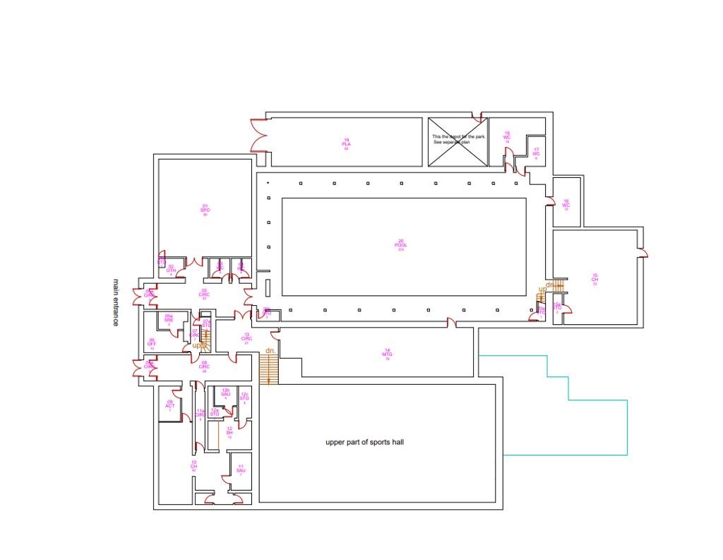
The property is a grade II-listed former baths built in 1893, with a total area of approximately 0.73 acres. It is constructed of stone and consists of three storeys plus a basement. The interior includes a 23m x 10m swimming pool, sports hall, fitness studio, sauna, steam room, office accommodation, and changing and toilet facilities. The property is sold freehold and is vacant. It is located at the corner of Wellington Street and Cambridge Street in a mixed-use area, with nearby access to bus routes and Batley train station.

Location
Map location for Batley Baths, Cambridge Street, Batley, West Yorkshire, WF17 5JH
More Information
Freehold
Cambridge Street
Planning Authority
Kirklees LPA
Property History
27 Jan 2026Sold Lot Mark Jenkinson£318,000
28 Jan 2026Sold Lot BTG Eddisons Property Auctions£318,000
28 Jan 2026Sold Lot BTG Eddisons Property Auctions£318,000

Interested in this lot?

GO TO THIS LOT

More Listings from this Auctioneer

Other listings nearby

DISCLAIMER

No Affiliation: PropertyAuctions.io is an independent service and is not affiliated with, endorsed by, or connected to any auction house, auctioneer, or property owner listed on this site.

Information Accuracy: All property information, including auction dates, descriptions, images, and pricing, is provided for informational purposes only and may contain errors or be outdated. We make no guarantee regarding accuracy or completeness.

Third-Party Content: Property images and descriptions are sourced from publicly available information. We do not claim ownership of content that may be copyrighted by auction houses or other parties.

Your Responsibility: You must verify all information directly with the relevant auction house before bidding or making any decisions. PropertyAuctions.io is not liable for any errors, omissions, or losses arising from use of this website.

Report Issues: If you spot an error or have copyright concerns, please report it here.

View Full Terms and Conditions