Halifax, 427 High Road, Wembley, HA9 7AB

Halifax, 427 High Road, Wembley, HA9 7AB

£1,400,000
Mixed Use
Withdrawn
About this Property
24 November 2022
Withdrawn
£1,400,000
Traditional
Mixed Use
Description

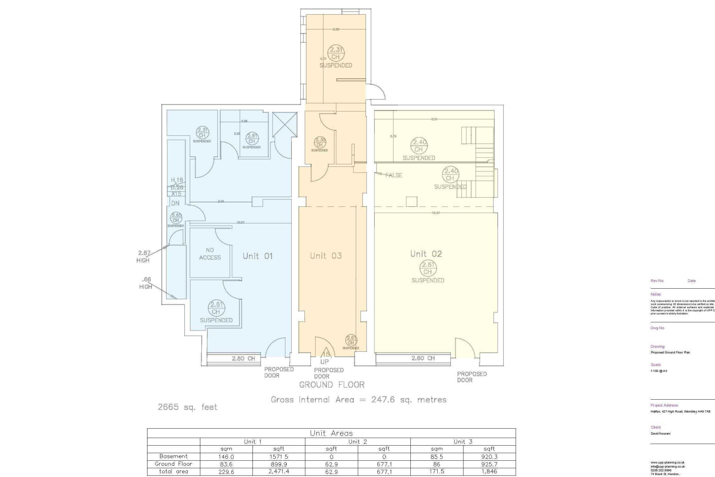
The property comprises the ground floor and basement of a four-storey mixed-use building. The ground floor and basement are let to a bank until 2027, with no breaks in the lease. The total net internal area is approximately 439 sq m (4,724 sq ft), with the ground floor measuring about 235 sq m (2,529 sq ft) and the basement about 204 sq m (2,195 sq ft). It is located on a busy high road and is less than 200 meters from a railway station. The property is situated in an area with both commercial and residential properties.

Location
Map location for Halifax, 427 High Road, Wembley,  HA9 7AB
More Information
Leasehold
Planning Authority
Brent LPA
Address History
08 Nov 2022Withdrawn Lot Savills plc£1,450,000
07 Feb 2023Withdrawn Lot Savills plc£1,400,000

Interested in this lot?

GO TO THIS LOT

More Listings from this Auctioneer

Other listings nearby

DISCLAIMER

No Affiliation: PropertyAuctions.io is an independent service and is not affiliated with, endorsed by, or connected to any auction house, auctioneer, or property owner listed on this site.

Information Accuracy: All property information, including auction dates, descriptions, images, and pricing, is provided for informational purposes only and may contain errors or be outdated. We make no guarantee regarding accuracy or completeness.

Third-Party Content: Property images and descriptions are sourced from publicly available information. We do not claim ownership of content that may be copyrighted by auction houses or other parties.

Your Responsibility: You must verify all information directly with the relevant auction house before bidding or making any decisions. PropertyAuctions.io is not liable for any errors, omissions, or losses arising from use of this website.

Report Issues: If you spot an error or have copyright concerns, please report it here.

View Full Terms and Conditions