152, Malling Road, SNODLAND, Kent, ME6 5EG

152, Malling Road, SNODLAND, Kent, ME6 5EG

£200,000
Residential
Unsold
About this Property
11 March 2025
Unsold
£200,000
Traditional
Residential
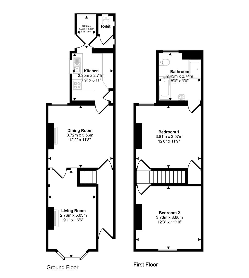
Description

Freehold semi-detached house requiring updating and modernising. The property has two floors with two bedrooms and a bathroom on the first floor. The ground floor includes an entrance hall, reception room, dining room, kitchen, and cloakroom/wc. It features a front garden and a rear garden. The property is located in a predominantly residential area with access to shopping facilities and transport links, including a rail station within a 0.5 mile walk. The EPC rating is C, and the council tax band is D.

Location
Map location for 152, Malling Road, SNODLAND, Kent, ME6 5EG
More Information
Freehold
Planning Authority
Tonbridge and Malling LPA
Address History
15 Nov 2024Sold£175,000
10 Dec 2024Sold Lot McHugh & Co£189,000
15 Apr 2025Sold Lot Barnard Marcus Auctions£190,000
06 May 2025Sold£190,000

Interested in this lot?

GO TO THIS LOT

More Listings from this Auctioneer

Other listings nearby

DISCLAIMER

No Affiliation: PropertyAuctions.io is an independent service and is not affiliated with, endorsed by, or connected to any auction house, auctioneer, or property owner listed on this site.

Information Accuracy: All property information, including auction dates, descriptions, images, and pricing, is provided for informational purposes only and may contain errors or be outdated. We make no guarantee regarding accuracy or completeness.

Third-Party Content: Property images and descriptions are sourced from publicly available information. We do not claim ownership of content that may be copyrighted by auction houses or other parties.

Your Responsibility: You must verify all information directly with the relevant auction house before bidding or making any decisions. PropertyAuctions.io is not liable for any errors, omissions, or losses arising from use of this website.

Report Issues: If you spot an error or have copyright concerns, please report it here.

View Full Terms and Conditions