68, Williams Close, GOSPORT, Hampshire, PO13 9QR

68, Williams Close, GOSPORT, Hampshire, PO13 9QR

Residential
Unsold
About this Property
30 July 2024
Unsold
Traditional
Residential
Description

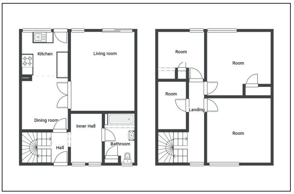
Two-floor end terrace house requiring modernisation, with a rear yard. The ground floor includes a reception room, kitchen/dining room, bathroom/WC, and hallway. The first floor consists of four rooms. The property is leasehold, with approximately 89 years remaining on a 125-year lease. The EPC rating is E and the Council Tax Band is A.

Location
Map location for 68, Williams Close, GOSPORT, Hampshire, PO13 9QR
More Information
Leasehold
Planning Authority
Gosport LPA
Address History
08 Apr 2024Sold£115,000
08 May 2024Withdrawn Lot Savills plc£70,000
26 Jun 2024Unsold Lot Auction House UK
11 Sep 2024Unsold Lot Auction House UK
29 Oct 2024Sold Lot McHugh & Co£114,000
09 Dec 2024Auction Ended Lot Auction House London£80,000
10 Dec 2024Sold£114,000

Interested in this lot?

GO TO THIS LOT

More Listings from this Auctioneer

Other listings nearby

DISCLAIMER

No Affiliation: PropertyAuctions.io is an independent service and is not affiliated with, endorsed by, or connected to any auction house, auctioneer, or property owner listed on this site.

Information Accuracy: All property information, including auction dates, descriptions, images, and pricing, is provided for informational purposes only and may contain errors or be outdated. We make no guarantee regarding accuracy or completeness.

Third-Party Content: Property images and descriptions are sourced from publicly available information. We do not claim ownership of content that may be copyrighted by auction houses or other parties.

Your Responsibility: You must verify all information directly with the relevant auction house before bidding or making any decisions. PropertyAuctions.io is not liable for any errors, omissions, or losses arising from use of this website.

Report Issues: If you spot an error or have copyright concerns, please report it here.

View Full Terms and Conditions