Back to properties

Hull Road, Blackpool, Lancashire, FY1 4QB - Online Auctions

42 Hull Road, Blackpool, Lancashire, FY1 4QB

£80,000
Residential
About this Property
2025-11-24
80000
Traditional
Residential
Description

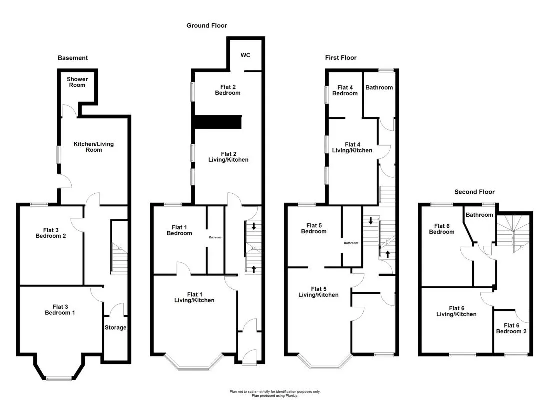
An exciting opportunity to acquire a substantial four-storey mid-terrace property arranged as six self-contained holiday apartments in the heart of Blackpool’s vibrant town centre, just moments from the seafront, Winter Gardens, and the main Promenade attractions. This property represents a rare chance to acquire a centrally located holiday accommodation block in a prime area. With refurbishment and modernisation, it offers strong potential, offering flexible investment potential, this property would suit buyers seeking short-term let income, serviced accommodation, or redevelopment subject to consents. Situated on Hull Road, a well-known mixed-use street lined with guesthouses, boutique B&Bs, and serviced apartments. 200 metres from Blackpool Tower and the Promenade, 3 minutes’ walk to Coral Island, Winter Gardens, and town-centre shopping. Excellent transport links via Blackpool North railway station and nearby tram network. This is one of Blackpool’s busiest tourist areas, making it ideal for holiday accommodation or short-term let investment. The property was reportedly converted to holiday flats around 1988. Buyers are advised to satisfy themselves as to the current planning status and compliance with Blackpool Council’s Holiday Accommodation Area policy. Basement Flat 3 Kitchen/Living room Flat 3 Bedroom 1 Flat 3 Bedroom 2 Flat 3 Shower Room Storage Ground Floor Flat 1 Living/Kitchen Flat 1 Bedroom Bathroom Flat 2 Living/Kitchen Flat 2 Bedroom WC First Floor Flat 4 Living/Kitchen Flat 4 Bedroom Bathroom Flat 5 Living/Kitchen Flat 5 Bedroom Second Floor Flat 6 Living/Kitchen Flat 6 Bedroom 1 Flat 6 Bedroom 2 Bathroom Freehold A In addition to the deposit Administration Charge: 1.2% inc VAT of the purchase price subject to a minimum of £1,500 inc VAT.

Location
Hull Road, Blackpool, Lancashire, FY1 4QB - Online Auctions
More Information
Freehold
Hull Road
House
Planing Authority
Blackpool LPA
Sold Price History
28 Apr 2025Unsold Lot Auction House Manchester£100,000
26 May 2025Unsold Lot Auction House Manchester£92,000
21 Oct 2025Unsold Lot Auction House Manchester£85,000

Interested in this lot?

GO TO THIS LOT

More Listings from this Auctioneer