24, Grange Hill, CHATHAM, Kent, ME5 7AH

24, Grange Hill, CHATHAM, Kent, ME5 7AH

£110,000
Residential
Unsold
About this Property
16 December 2025
Unsold
£110,000
Traditional
Residential
Description

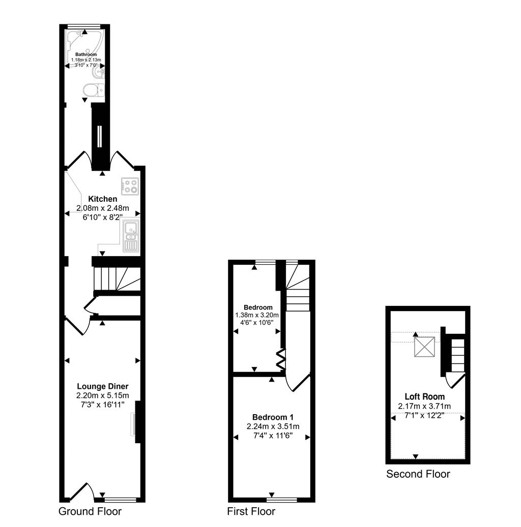
This property is a freehold, three-floor terrace house. It includes a ground floor with a reception room/diner, kitchen, and bathroom; a first floor with two bedrooms; and a second floor with a loft room accessed by a loft ladder. The property has an EPC rating of D and is in Council Tax Band B.

Location
Map location for 24, Grange Hill, CHATHAM, Kent, ME5 7AH
More Information
Freehold
Grange Hill
Planning Authority
Medway LPA
Property History
20 Aug 2025Sold£107,500
16 Oct 2025Auction Ended Lot Auction House UK
16 Oct 2025Withdrawn Lot Auction House London£90,000
18 Nov 2025Unsold Lot Barnard Marcus Auctions£75,000

Interested in this lot?

GO TO THIS LOT

More Listings from this Auctioneer

Other listings nearby

DISCLAIMER

No Affiliation: PropertyAuctions.io is an independent service and is not affiliated with, endorsed by, or connected to any auction house, auctioneer, or property owner listed on this site.

Information Accuracy: All property information, including auction dates, descriptions, images, and pricing, is provided for informational purposes only and may contain errors or be outdated. We make no guarantee regarding accuracy or completeness.

Third-Party Content: Property images and descriptions are sourced from publicly available information. We do not claim ownership of content that may be copyrighted by auction houses or other parties.

Your Responsibility: You must verify all information directly with the relevant auction house before bidding or making any decisions. PropertyAuctions.io is not liable for any errors, omissions, or losses arising from use of this website.

Report Issues: If you spot an error or have copyright concerns, please report it here.

View Full Terms and Conditions