Barn Adjacent to, 8 Barn Close, Castle Donington, Derby, Leicestershire DE74 2TP

Barn Adjacent to, 8 Barn Close, Castle Donington, Derby, Leicestershire DE74 2TP

£185,000
Residential
Available
About this Property
26 March 2026
Available
£185,000
Traditional
Residential
Description

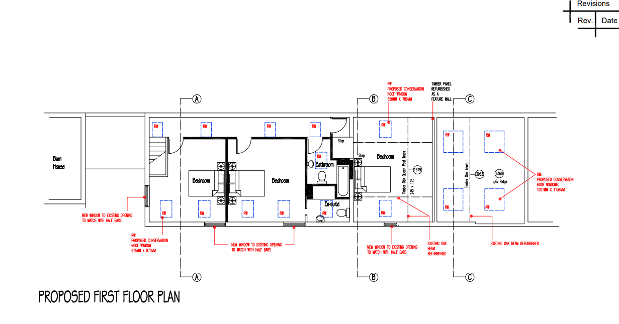
A barn with full planning permission for residential conversion is located in a quiet area of Castle Donnington. The barn has a ground floor footprint of approximately 119 square meters (1280 square feet) and, once converted, will provide around 208 square meters (2240 square feet) of accommodation. The current condition of the barn is described as relatively sound. The property includes a good-sized plot with mature gardens and ample parking.

Location
Map location for Barn Adjacent to, 8 Barn Close, Castle Donington, Derby, Leicestershire DE74 2TP
More Information
Barn Close
Planning Authority
North West Leicestershire LPA
Property History
26 Mar 2026Available Lot SDL Property Auctions£185,000

Interested in this lot?

GO TO THIS LOT

More Listings from this Auctioneer

DISCLAIMER

No Affiliation: PropertyAuctions.io is an independent service and is not affiliated with, endorsed by, or connected to any auction house, auctioneer, or property owner listed on this site.

Information Accuracy: All property information, including auction dates, descriptions, images, and pricing, is provided for informational purposes only and may contain errors or be outdated. We make no guarantee regarding accuracy or completeness.

Third-Party Content: Property images and descriptions are sourced from publicly available information. We do not claim ownership of content that may be copyrighted by auction houses or other parties.

Your Responsibility: You must verify all information directly with the relevant auction house before bidding or making any decisions. PropertyAuctions.io is not liable for any errors, omissions, or losses arising from use of this website.

Report Issues: If you spot an error or have copyright concerns, please report it here.

View Full Terms and Conditions