33 Westleigh Road, Leicester, Leicestershire LE3 0HH

33 Westleigh Road, Leicester, Leicestershire LE3 0HH

£450,000
Residential
Auction Ended
About this Property
25 May 2023
Auction Ended
£450,000
Traditional
Residential
Description

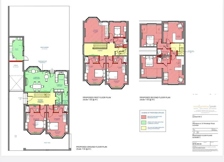
Semi-detached house with seven bedrooms and accommodation over three floors. Planning permission has been granted for conversion to seven assisted living flats, including three one-bedroom flats and four studio flats, along with communal and office space. The property features a reception hallway, cloakroom/W.C., lounge, sitting room, dining room, kitchen, and seven bedrooms with a bathroom/W.C. It has a driveway for approximately three cars, a sizeable garage, and an enclosed rear garden. The property is freehold with vacant possession upon completion. EPC Rating: E. Council Tax Band: E.

Location
Map location for 33 Westleigh Road, Leicester, Leicestershire LE3 0HH
More Information
Freehold
Planning Authority
Leicester LPA
Address History
30 Mar 2023Auction Ended Lot SDL Property Auctions£450,000
27 Apr 2023Auction Ended Lot SDL Property Auctions£450,000
22 Aug 2023Sold£495,000
27 Aug 2024Sold£493,181

Interested in this lot?

GO TO THIS LOT

More Listings from this Auctioneer

Other listings nearby

DISCLAIMER

No Affiliation: PropertyAuctions.io is an independent service and is not affiliated with, endorsed by, or connected to any auction house, auctioneer, or property owner listed on this site.

Information Accuracy: All property information, including auction dates, descriptions, images, and pricing, is provided for informational purposes only and may contain errors or be outdated. We make no guarantee regarding accuracy or completeness.

Third-Party Content: Property images and descriptions are sourced from publicly available information. We do not claim ownership of content that may be copyrighted by auction houses or other parties.

Your Responsibility: You must verify all information directly with the relevant auction house before bidding or making any decisions. PropertyAuctions.io is not liable for any errors, omissions, or losses arising from use of this website.

Report Issues: If you spot an error or have copyright concerns, please report it here.

View Full Terms and Conditions