27, Warren Street, PLYMOUTH, Devon, PL2 1RQ

27, Warren Street, PLYMOUTH, Devon, PL2 1RQ

£200,000
Residential
Sold
About this Property
03 February 2026
Sold
£200,000
Traditional
Residential
Description

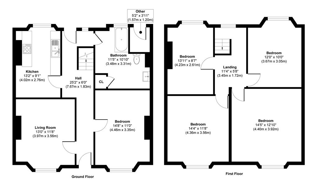
Freehold end terrace house arranged over ground and first floors, requiring modernisation, with a rear yard. The property includes four bedrooms on the first floor and two reception rooms, a kitchen, and a bathroom/WC on the ground floor. The gross internal area is 126 sq m (1,356 sq ft). There are front and rear yards. The property is situated near public transport links and local shopping amenities. Council Tax Band: B, EPC rating: D.

Location
Map location for 27, Warren Street, PLYMOUTH, Devon, PL2 1RQ
More Information
Freehold
Planning Authority
Plymouth LPA
Address History
19 Aug 1998Sold£27,000
28 Aug 2025Withdrawn Lot Town and Country Franchise Ltd£200,000
26 Sep 2025Unsold Lot Town and Country Franchise Ltd£200,000
10 Mar 2026Sold Lot Barnard Marcus Auctions£200,000

Interested in this lot?

GO TO THIS LOT

More Listings from this Auctioneer

Other listings nearby

DISCLAIMER

No Affiliation: PropertyAuctions.io is an independent service and is not affiliated with, endorsed by, or connected to any auction house, auctioneer, or property owner listed on this site.

Information Accuracy: All property information, including auction dates, descriptions, images, and pricing, is provided for informational purposes only and may contain errors or be outdated. We make no guarantee regarding accuracy or completeness.

Third-Party Content: Property images and descriptions are sourced from publicly available information. We do not claim ownership of content that may be copyrighted by auction houses or other parties.

Your Responsibility: You must verify all information directly with the relevant auction house before bidding or making any decisions. PropertyAuctions.io is not liable for any errors, omissions, or losses arising from use of this website.

Report Issues: If you spot an error or have copyright concerns, please report it here.

View Full Terms and Conditions