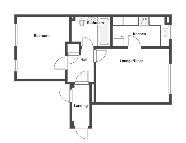
Barnard Marcus AuctionsBarnard Marcus Auctions is one of the UK’s leading property auction houses, offering a wide range of residential and commercial properties across the country. With regular auctions held in London, they provide a fast, transparent, and efficient way to buy and sell properties, attracting investors, developers, and homebuyers alike.
Read more Read more




















