Back to properties

Eldon, Bishop Auckland, County Durham, DL14 8UZ - Online Auctions

48 Pasture Row Eldon, Bishop Auckland, County Durham, DL14 8UZ

£10,000
Residential
About this Property
2025-10-13
10000
Traditional
Residential
Description

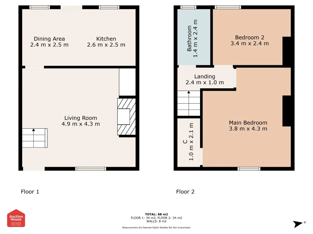
Situation: The property is situate on Pasture Row, Bishop Auckland being well positioned for access to the town centre and its facilities and amenities. The historic city of Durham is within easy reach, along with Middlesborough, Darlington, and Newcastle upon Tyne. Description: A wonderful opportunity to acquire this mid terrace house, with the benefit of a reception room and spacious dining kitchen. This property provides an excellent opportunity for both owner occupiers and investors alike, with scope to add value for resale and the potential for significant rental yield (at current guide price) at £625pcm (£7500 per annum). An internal viewing is a must to appreciate the accommodation and potential on offer. Accommodation Ground Floor Living Room Dining Kitchen Kitchen First Floor Bedroom 1 Bedroom 2 Family Bathroom Outside Garden Material Information Tenure: The property is freehold. All prospective bidders should satisfy themselves of terms of the tenure, ground rent and service charge if applicable, by inspecting the legal pack. Council Tax: The property falls within Durham County Council – BAND A Possession: Vacant possession will be given upon completion. Viewing: Strictly by appointment with Auction House. Services: Prospective purchasers are advised to make their own enquiries of the relevant statutory authorities. NB: Services, Apparatus and Equipment have not been tested by Auction House and therefore cannot be verified as being in working order. The buyer is advised to obtain verification from their Solicitor/Surveyor. These particulars are believed to be correct but their accuracy is not guaranteed and they do not form any part of any contract. Information relating to Rating and Town and Country Planning matters has been obtained by verbal enquiry only. Prospective purchasers are advised to make their own enquiries of the appropriate Authority. Information relating to Phone & Broadband can be found by visiting Ofcom. All measurements, areas and distances are approximate only. Potential purchasers are advised to check them. F Non-refundable £3,600 inc VAT payable on the fall of the virtual gavel. Please see the legal pack for any disbursements listed that may become payable by the purchaser on completion.

Location
Eldon, Bishop Auckland, County Durham, DL14 8UZ - Online Auctions
More Information
Freehold
Pasture Row
House
Planing Authority
County Durham LPA
Sold Price History
30 Mar 2001Sold£17,000
06 Feb 2004Sold£25,950
10 Aug 2023Sold£33,000
10 Sep 2024Sold£19,000
03 Jul 2025Sold£31,000

Interested in this lot?

GO TO THIS LOT

More Listings from this Auctioneer

Other listings nearby