Back to properties

Flat 82, Monarch Court, Lyttelton Road, London, N2 0RB

Flat 82, Monarch Court, Lyttelton Road, London, N2 0RB

£270,000
Residential
About this Property
2025-10-14
270000
Traditional
Residential
Description

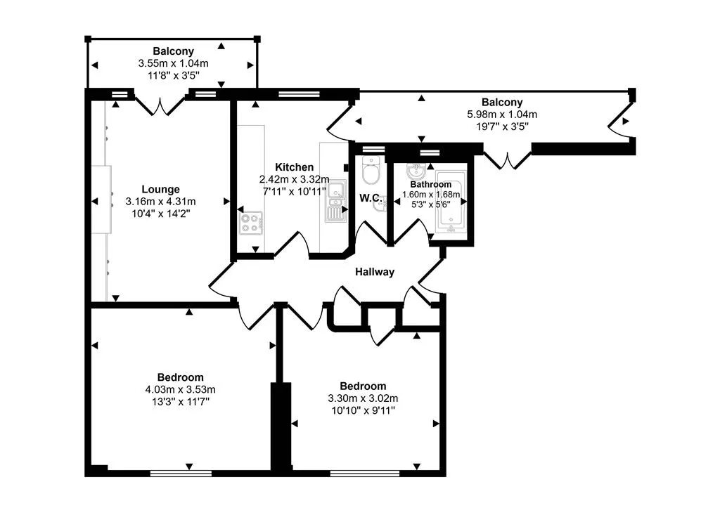
Leasehold second floor self contained flat Investment Location: The property is situated within Monarch Court which is accessed off the South side of Lyttelton Road close to its junction with Norrice Lea. Public transport links include East Finchley (Northern Line) Underground Station together with local bus services serving the surrounding area. A comprehensive range of shops, restaurants and cafes are available locally along The Market Place. Accommodation: Two bedrooms, reception room, kitchen, bathroom, separate WC Outside: Two balconies, communal gardens EPC rating: C Council Tax Band: D Lease: Held on a lease for a term of 125 years from 1st January 1976 at an initial ground rent of £100 per annum. Tenancy: Held on an AST commencing 2nd March 2025 at a rent of £1450 per calendar month Rent Reserved: £17,400 per annum.

Location
Flat 82, Monarch Court, Lyttelton Road, London, N2 0RB
More Information
Leasehold
Leasehold second floor self contained flat
Planing Authority
Barnet LPA

Interested in this lot?

GO TO THIS LOT

More Listings from this Auctioneer

Other listings nearby