Back to properties

Vacant Commercial

3 Princes Street, Falkirk, FK1 1LS

£270,000
Commercial
About this Property
2025-03-28
270000
Traditional
Commercial
Description

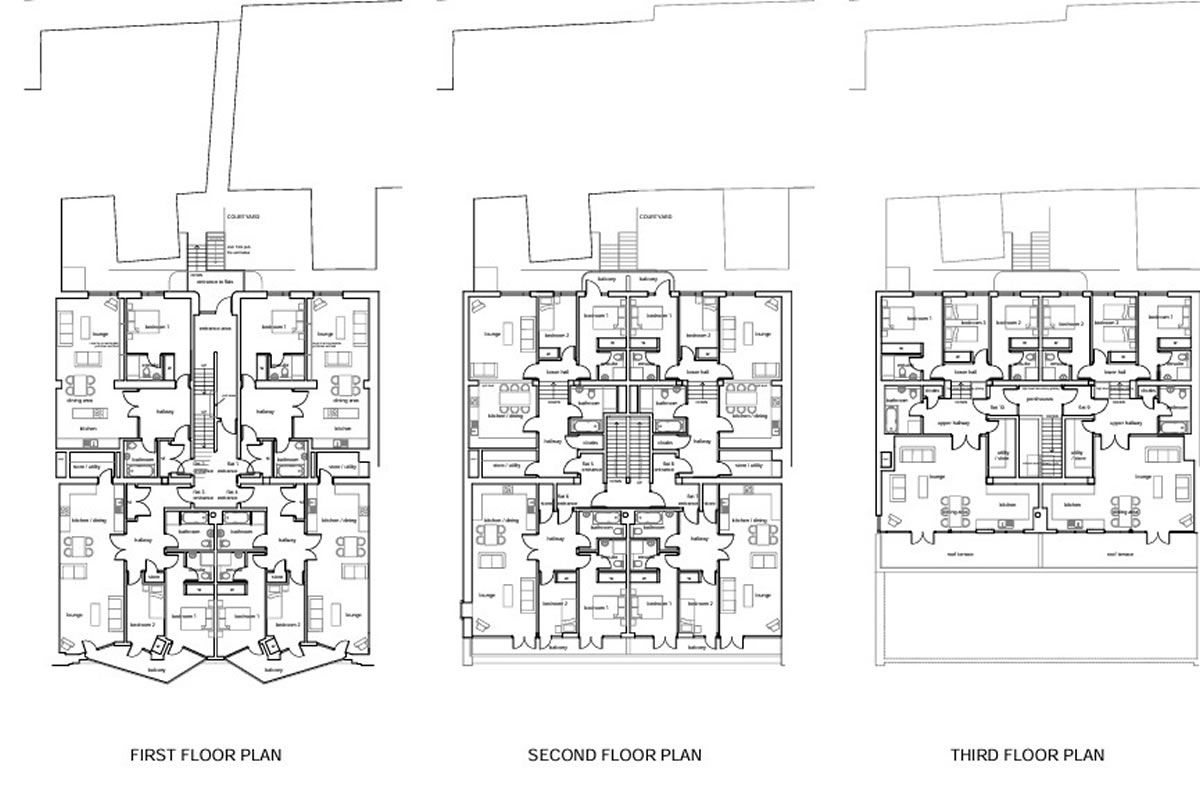
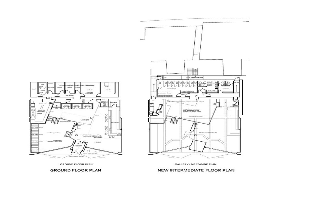
tatus: Available Type: Commercial Ownership: Freehold Occupation: Vacant Rateable Value: Search Supersized former nightclub in Falkirk town centreAmazing development opportunityHistoric residential / commercial development plans granted Massive potential with various development options Potential residential conversion (STP)*** Potential serviced accommodation conversion (STP)*** Previous planning had been granted for the conversion to 2 retail units and 6 flats Fantastic potential development with strong demand for residential and commercial space*** Prime trading spot with other units nearby including, JD Wetherspoon, Slater Hogg & Howison, Monterey Jacks, City Nightclub and the Orchard Hotel ***Internal sizes Basement- 99sq metres Ground floor- 427sq metres First floor- 427sq metres

Total floorspace: 953sq metres. Supersized former nightclub in Falkirk town centreAmazing development opportunityHistoric residential / commercial development plans granted

Massive potential with various development options Potential residential conversion (STP)*** Potential serviced accommodation conversion (STP)***

Previous planning had been granted for the conversion to 2 retail units and 6 flats Fantastic potential development with strong demand for residential and commercial space***

Prime trading spot with other units nearby including, JD Wetherspoon, Slater Hogg & Howison, Monterey Jacks, City Nightclub and the Orchard Hotel

***Internal sizes Basement- 99sq metres Ground floor- 427sq metres First floor- 427sq metres

Total floorspace: 953sq metres. Falkirk, with a population of 38,000, in central Scotland, 25 miles north-east of Glasgow, 23 miles west of Edinburgh and 15 miles south of Stirling. Access to the town is via the M80 and M9 motorways.

Falkirk also has excellent transport facilities with readily accessible motorway links to Edinburgh, Glasgow and beyond and is served by two main line railway stations offering further superb transport links.

Falkirk is also home to the popular Helix park and Kelpies, the Historic Callendar house and park, and the famous Falkirk Wheel, a rotating boat lift connecting the Forth and Clyde Canal with the Union Canal. Full Address: 3 Princes Street, Falkirk, FK1  1L

Location
Vacant Commercial
More Information
Freehold
Princes Street
Commercial
Planing Authority
Falkirk

Interested in this lot?

GO TO THIS LOT

More Listings from this Auctioneer

Other listings nearby