Back to properties

Queens Road, London, SE15

Queens Road, London, SE15

£700,000
Residential
About this Property
2025-10-23
700000
Traditional
Residential
Description

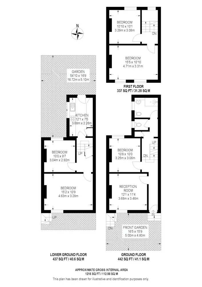
Arranged over three floors, this four bedroom house boasts wonderful interiors including a large reception room, a separate kitchen and a delightful private garden. Additional Comments BidX1 and Foxtons are working in Partnership as Joint Agents for the online auction and due to this any enquiries, viewings, bids or offers on the property will require your details to be shared between both Bidx1 & Foxtons. Viewings are by appointment only unless open house times are displayed, please contact us to book your appointment with our Auction teams. Subject to confirmation This means the buyer is invited to place a bid at or above the opening bid price of the listed property. Once bidding is closed, the vendor has 48 hours to decide if they want to accept the highest bid or not. If you are not the highest bidder your participation fee will be refunded in full within a maximum of 5 business days (unless delayed by the card provider) post the bidding closing time. If you are successful following vendor acceptance, in accordance with the authority you provided on registration, BidX1 will sign legally binding contracts relating to the sale of the property on behalf of you and the vendor.

Location
Queens Road, London, SE15
More Information
Freehold
Queen's Road
House
Planing Authority
Southwark LPA

Interested in this lot?

GO TO THIS LOT

More Listings from this Auctioneer

Other listings nearby