Land adjacent to 30 Panters, Hextable, Swanley, BR8 7RW

Land adjacent to 30 Panters, Hextable, Swanley, BR8 7RW

£68,500
Land
Withdrawn
About this Property
2025-07-23
Withdrawn
£68,500
Traditional
Land
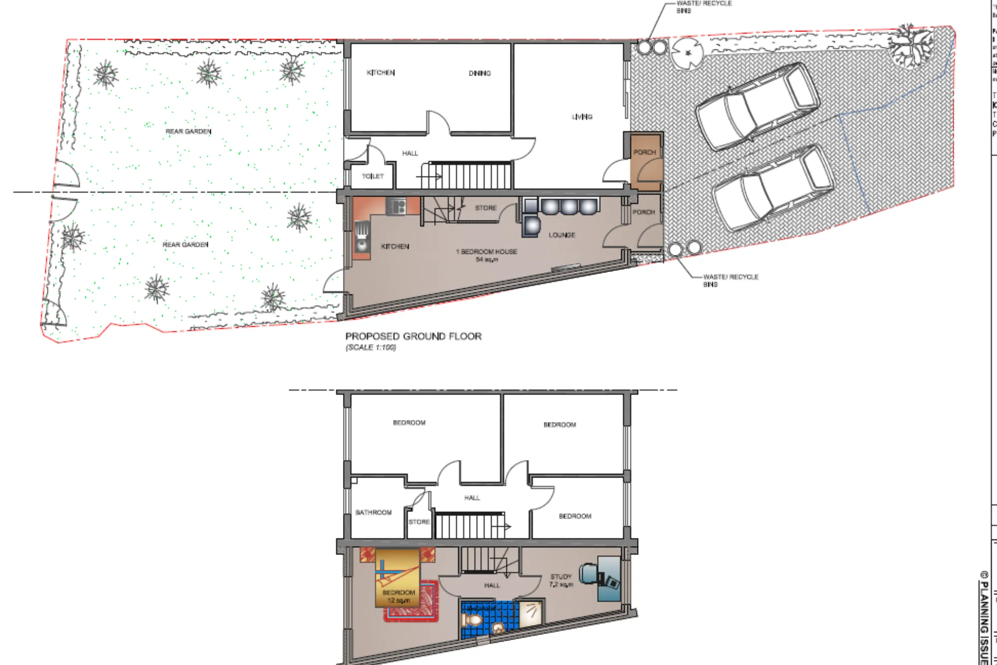
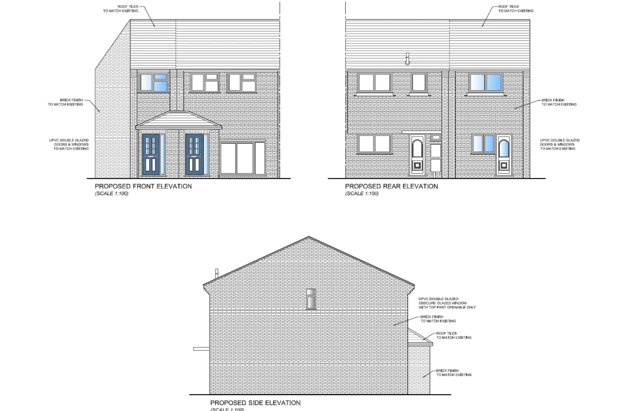
Description

A freehold parcel of land is situated adjacent to an existing property, with granted planning permission for the construction of a two-storey extension. The approved plans include a self-contained dwelling with one bedroom and a study. The property is located in Hextable within the Sevenoaks district of Kent, approximately 1.4 miles from a railway station providing services to London and other towns. Local amenities, including shops and a medical facility, are within walking distance, and a nearby park offers recreational facilities.

Location
Land adjacent to 30 Panters, Hextable, Swanley, BR8 7RW
More Information
Freehold
Panter's
Planning Authority
Sevenoaks LPA
Property History
23 Jul 2025Withdrawn Lot Savills plc£68,500
19 Aug 2025Sold Lot Savills plc£75,000
10 Sep 2025Unsold Lot Auction House London£90,000
22 Oct 2025Withdrawn Lot McHugh & Co£60,000
18 Nov 2025Unsold Lot Barnard Marcus Auctions£95,000
16 Dec 2025Available Lot Barnard Marcus Auctions£50,000

Interested in this lot?

GO TO THIS LOT
DISCLAIMER

No Affiliation: PropertyAuctions.io is an independent service and is not affiliated with, endorsed by, or connected to any auction house, auctioneer, or property owner listed on this site.

Information Accuracy: All property information, including auction dates, descriptions, images, and pricing, is provided for informational purposes only and may contain errors or be outdated. We make no guarantee regarding accuracy or completeness.

Third-Party Content: Property images and descriptions are sourced from publicly available information. We do not claim ownership of content that may be copyrighted by auction houses or other parties.

Your Responsibility: You must verify all information directly with the relevant auction house before bidding or making any decisions. PropertyAuctions.io is not liable for any errors, omissions, or losses arising from use of this website. Report Issues: If you spot an error or have copyright concerns, please report it here.

View Full Terms and Conditions

More Listings from this Auctioneer

Other listings nearby