Back to properties

1 Stirling Road, Shortstown, Bedford, MK42 0TX

1 Stirling Road, Shortstown, Bedford, MK42 0TX

Residential
About this Property
2024-12-04
Traditional
Residential
Description

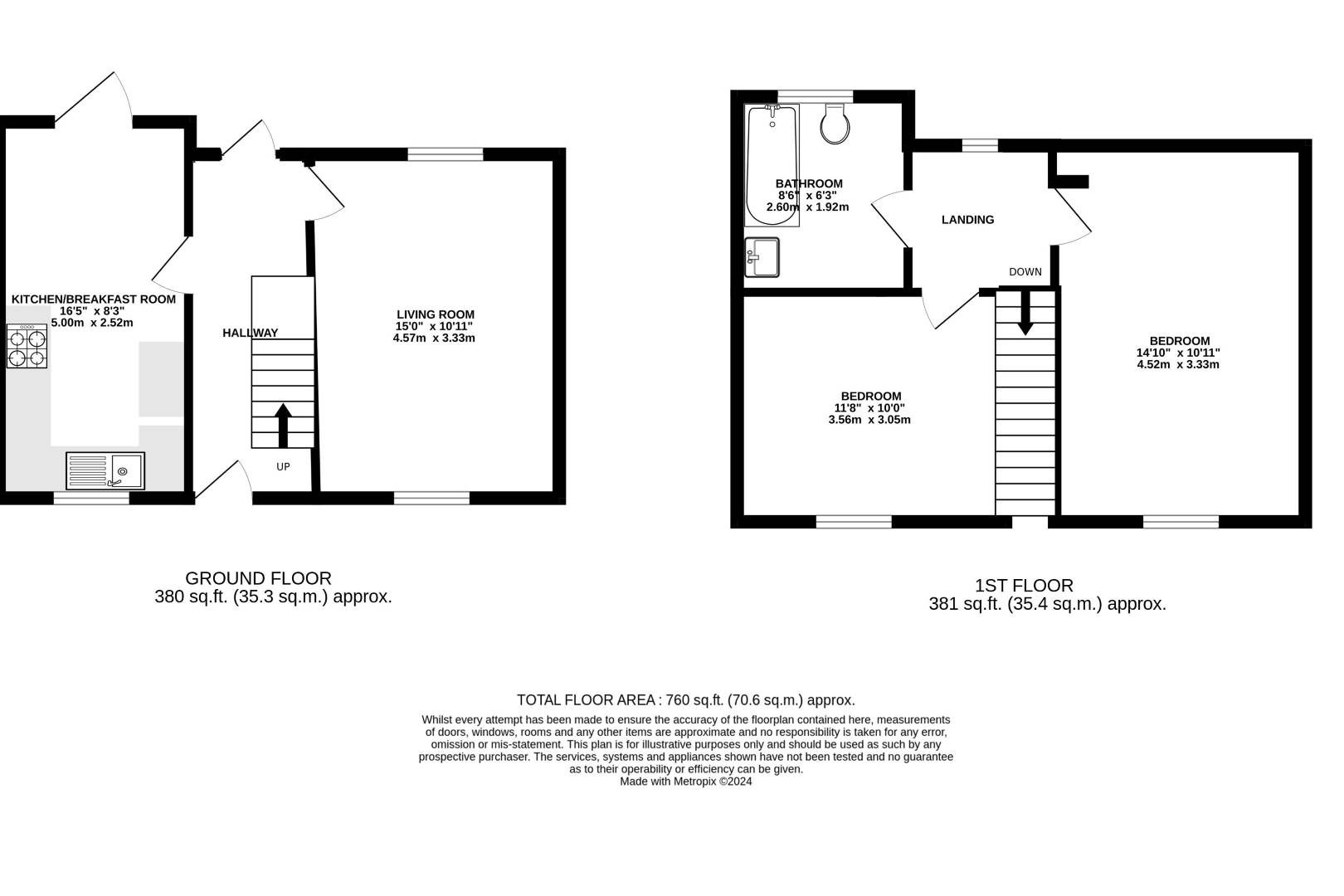
Freehold Semi-Detached House Two Floor Three Room(s) 760 Square Feet Unmodernised Parking Space Garden

Location
1 Stirling Road, Shortstown, Bedford, MK42 0TX
More Information
Not Specified
Stirling Road
Planing Authority
Bedford LPA
Sold Price History
10 Sep 1999Sold£52,500
24 Jan 2025Sold£328,000

Interested in this lot?

GO TO THIS LOT

More Listings from this Auctioneer

Other listings nearby