Back to properties

Beresford Drive, Ilkeston, Derbyshire, DE7 8SN

45 Beresford Drive, Ilkeston, Derbyshire, DE7 8SN

£94,000
Residential
About this Property
2025-03-26
94000
Traditional
Residential
Description

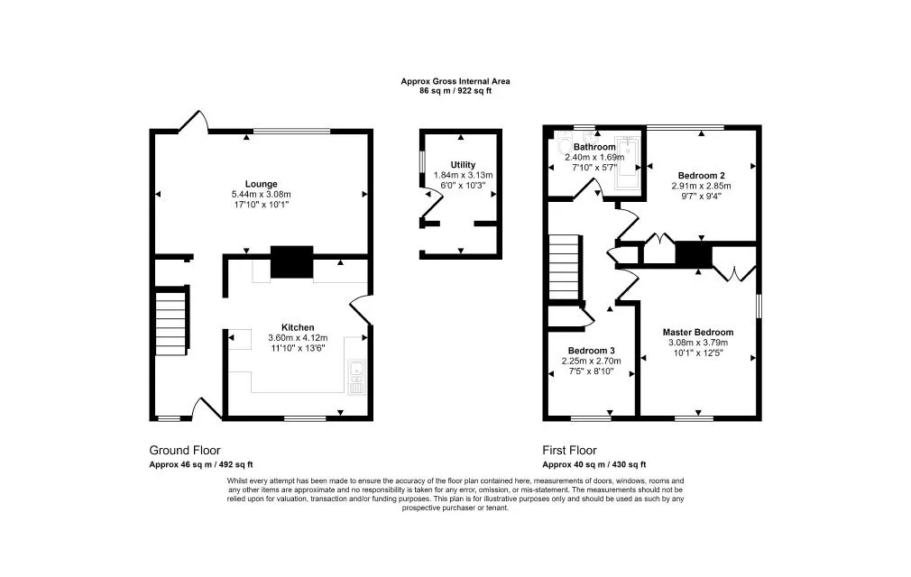
Freehold House Vacant Possession Six Week Completion or Earlier Local Authority Erewash Borough Council Description Situated near to the junction with Beauvale Drive, close to local shopping facilities and a short drive from the amenities available in Ilkeston Town Centre including Ilkeston Train Station. Shipley Country Park is also nearby. A Semi-Detached House requiring modernisation on a Good Size Corner Plot with accommodation arranged on Two Floors comprising: First Floor • Bedroom (One) • Bedroom (Two) • Bedroom (Three) • Bathroom/WC Ground Floor • Entrance Hall • Living Room • Kitchen Front, Side and Rear Gardens Note : There may be development/extension potential subject to the necessary consents being obtained. Tenancy Vacant Possession EPC Rating C Available at price £120,000 Council Tax Band A

Location
Beresford Drive, Ilkeston, Derbyshire, DE7 8SN
More Information
Not Specified
Beresford Drive
freehold house vacant possession
Planing Authority
Erewash LPA
Sold Price History
09 Apr 2024Sold£118,000
22 May 2024Sold Lot McHugh & Co£122,000
22 May 2024Withdrawn Lot McHugh & Co
12 Sep 2024Sold Lot Bond Wolfe£115,000
29 Oct 2024Withdrawn Lot McHugh & Co
29 Oct 2024Unsold Lot McHugh & Co£75,000
10 Dec 2024Unsold Lot McHugh & Co£100,000
10 Dec 2024Unsold Lot McHugh & Co£120,000
06 Feb 2025Sold Lot Bond Wolfe£110,000
23 Jun 2025Sold£109,000

Interested in this lot?

GO TO THIS LOT

More Listings from this Auctioneer

Other listings nearby