Back to properties

Land on Station Road & Corner of Holmden Avenue, Wigston, LE18 2DJ

Land on Station Road & Corner of Holmden Avenue, Wigston, LE18 2DJ

Land
About this Property
2025-11-12
Traditional
Land
Description

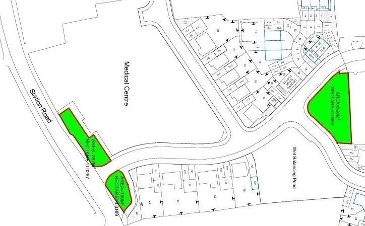
3 level sites of public open space totalling approximately 0.25 acres (1,191 sqyds). Two of the sites are located on Station Road either side of Abingdon Close and one site is located on the corner of Heatherley Grove and Holmden Avenue. Potential for development, subject to planning permission. Local Authority: Oadby & Wigston Borough Council (0116) 257 2636 Freehold. Generally speaking Guide Prices are provided as an indication of each seller's minimum expectation. They are not necessarily figures which a property will sell for and may change at any time prior to the auction. Virtually every property will be offered subject to a Reserve (a figure below which the Auctioneer cannot sell the property during the auction) which we expect will be set within the Guide Range or no more than 10% above a single figure Guide.

Location
Land on Station Road & Corner of Holmden Avenue, Wigston, LE18 2DJ
More Information
Freehold
Station Road
Planing Authority
Oadby and Wigston LPA

Interested in this lot?

GO TO THIS LOT

More Listings from this Auctioneer

Other listings nearby