Back to properties

Land rear of, 50 Courtney Road, Kingswood, Bristol, BS15 9RH

Land rear of, 50 Courtney Road, Kingswood, Bristol, BS15 9RH

£180,000
Land
About this Property
2025-10-16
180000
Traditional
Land
Description

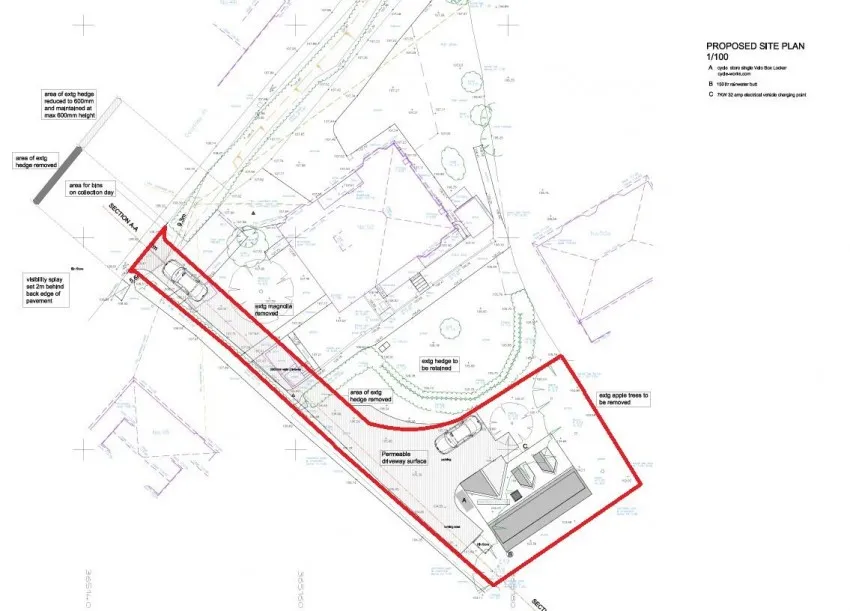
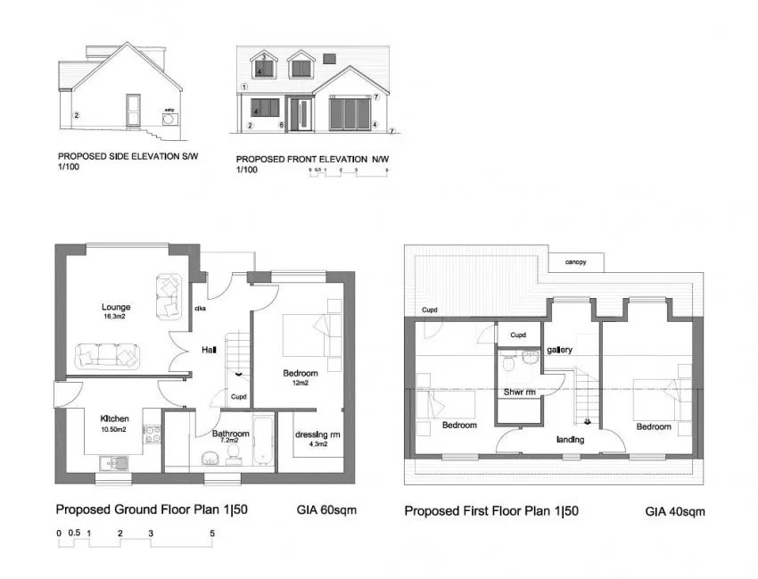
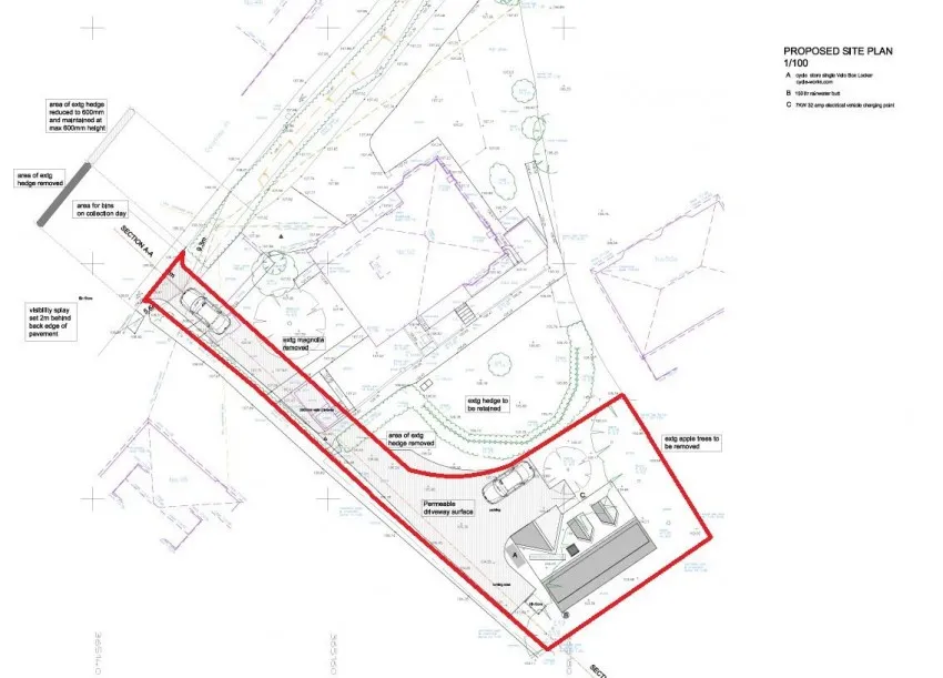
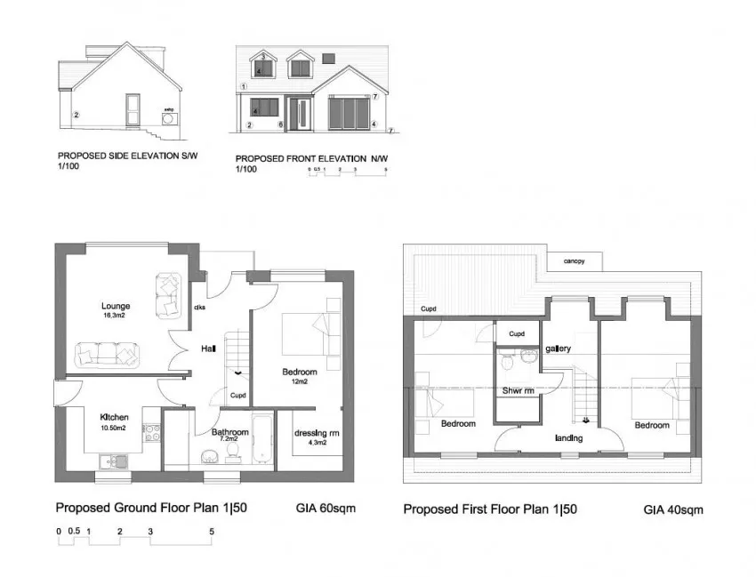
An exciting opportunity to purchase a building plot in a popular and secluded location in Kingswood. Outline planning consent has been granted for the erection of a detached 3-bedroom house (approx. 100 m²) with a private driveway, parking and gardens.

Location
Land rear of, 50 Courtney Road, Kingswood, Bristol, BS15 9RH
More Information
Freehold
Courtney Road
Planing Authority
South Gloucestershire LPA
Sold Price History
19 May 2015Sold£400,000

Interested in this lot?

GO TO THIS LOT

More Listings from this Auctioneer

Other listings nearby