Cutlers Place Colehill, Wimborne, Dorset, BH21

Cutlers Place Colehill, Wimborne, Dorset, BH21

£5,000
Land
Available
About this Property
2025-12-12
Available
£5,000
Traditional
Land
Description

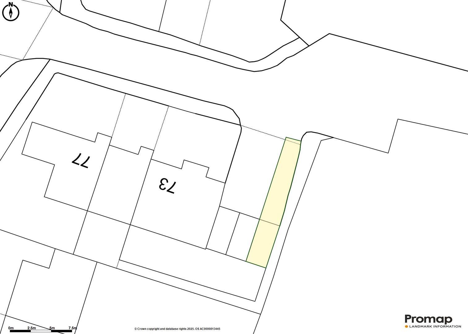
A single garage within a block of three, located at the end of a residential road. The site measures approximately 38.3 sqm in total, including the garage, and includes a small area of land in front of the garage. Road links are nearby via the A31, which is 0.8 miles away. The tenure is freehold.

Location
Cutlers Place Colehill, Wimborne, Dorset, BH21
More Information
Freehold
Cutlers Place
Planning Authority
Dorset LPA

Interested in this lot?

GO TO THIS LOT
DISCLAIMER

No Affiliation: PropertyAuctions.io is an independent service and is not affiliated with, endorsed by, or connected to any auction house, auctioneer, or property owner listed on this site.

Information Accuracy: All property information, including auction dates, descriptions, images, and pricing, is provided for informational purposes only and may contain errors or be outdated. We make no guarantee regarding accuracy or completeness.

Third-Party Content: Property images and descriptions are sourced from publicly available information. We do not claim ownership of content that may be copyrighted by auction houses or other parties.

Your Responsibility: You must verify all information directly with the relevant auction house before bidding or making any decisions. PropertyAuctions.io is not liable for any errors, omissions, or losses arising from use of this website. Report Issues: If you spot an error or have copyright concerns, please report it here.

View Full Terms and Conditions

More Listings from this Auctioneer

Other listings nearby