Back to properties

Lot 153 - 103 Heol Y Gors, Townhill, Swansea, West Glamorgan, SA1 6RY

Heol Y Gors, Townhill, Swansea, West Glamorgan, SA1 6RY

£89,000
Residential
About this Property
2025-11-19
89000
Modern
Residential
Description

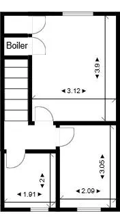
AUCTION REGISTRATION IS NOW OPEN. ALL BIDDERS PAY A HOLDING FEE IN ORDER TO BID IN THE ONLINE AUCTION. THE WINNING BIDDER WILL BE REQUIRED TO PAY THE DEPOSIT WHICH IS 10% OF THE FINAL BID AND THEIR HOLDING FEE IS RETAINED BY THE AUCTIONEERS. IF SOLD PRIOR TO AUCTION NO HOLDING FEE APPLIES BUT A BUYERS’ PREMIUM IS REQUIRED TO EXCHANGE. COMPLETION WILL BE 28 DAYS AFTER EXCHANGE. (UNLESS STATED DIFFERENT ON THE CONTRACT) *** PRE-AUCTION OFFERS WELCOME*** We have for sale by Online Auction a two-bedroom mid terrace house with one reception room, kitchen, and a bathroom. Externally there is an enclosed garden to rear. Located close to local amenities, shops and schools. Tenure: Freehold. Council Tax: A EPC: D GROUND FLOOR Entrance: Porch Reception room: 4.64m x 4.13m - uPVC double glazed window to front Kitchen: 4.12m x 2.26m - uPVC double glazed window to rear. Access to rear garden. FIRST FLOOR Bedroom One: 3.9m x 3.12m – uPVC window to font. Bedroom Two: 3.05m x 2.09m - uPVC double glazed window to rear. Bathroom: 2.0m x 1.91m – uPVC double glazed window to rear. EXTERNALLY Enclosed garden to rear PLEASE NOTE It is the responsibility of all purchasers to conduct their own investigation into all aspects of the property and seek legal advice. The Legal Pack will be available on our website prior to bidding commencing. Please note legal packs can be downloaded through The Property Auction House website. www.thepropertyauctionhouse.com PAYMENTS To bid online you will be required to pay a holding fee this will only be withdrawn from your account should you be the successful bidder.  To exchange you will be required to pay a 10% deposit and sign the contract within 24 hours and complete the transaction paying the balance of funds within 28 days, (this timescale may vary always read the contract in the Legal Pack for confirmation).We always strongly recommend ensuring your finances are in place prior to the auction, due to the timescales involved. A buyer’s premium fee is only payable should a property be sold pre auction, this fee is 2% subject to a minimum fee of £4,000 +VAT

Location
Lot 153 - 103 Heol Y Gors, Townhill, Swansea, West Glamorgan, SA1 6RY
More Information
Freehold
Heol-Y-Gors
Planing Authority
Swansea

Interested in this lot?

GO TO THIS LOT

More Listings from this Auctioneer

Other listings nearby