Back to properties

10, Shelley Way, PLYMOUTH, Devon, PL5 1QE

10, Shelley Way, PLYMOUTH, Devon, PL5 1QE

£150,000
Residential
About this Property
2025-11-18
150000
Traditional
Residential
Description

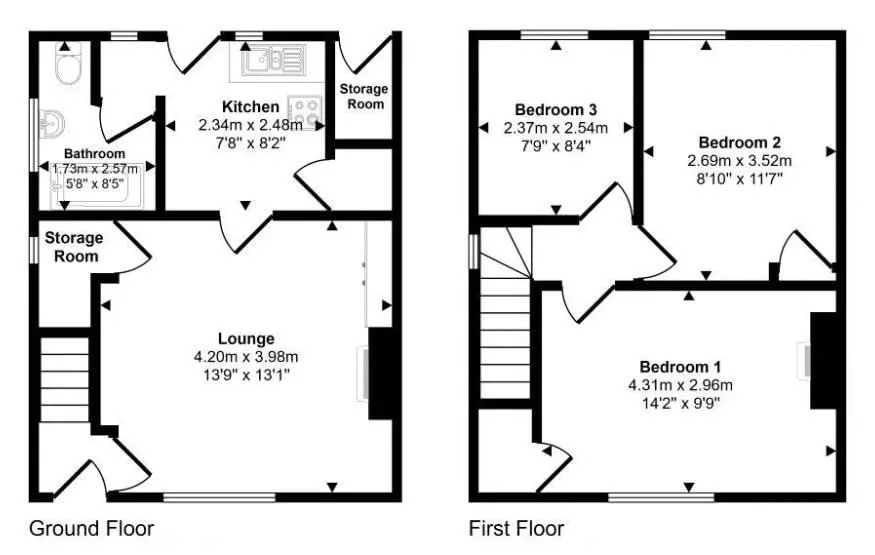
Freehold two floor semi-detached house requiring modernisation, Full vacant possession Location: The property is situated on Shelley Way between its junctions with Kathleaven Road and Victoria Road. Public transport links include St Budeaux Ferry Road mainline rail station together with a network of local bus services serving the surrounding vicinity. Road links include the A38 and A3064. Shopping amenities can be found locally within St Budeaux, with an extensive range of shops, bars and restaurants being found in Plymouth city centre. Recreational pursuits can be found locally at the open spaces of Ham Woods Local Nature Reserve and Devonport Park. Description: Freehold semi-detached house arranged over ground and first floors requiring modernisation. Accommodation: First floor: Three bedrooms Ground floor: Reception room, kitchen, bathroom/WC Outside: Front, side and rear gardens Gross Internal Area (GIA): Approximately 69 sq m (744 sq ft) EPC rating: D Council Tax Band: B To view: 7/11 at 2:30pm, 12/11, 15/11 at 1:30pm No booking required - Please arrive at the time stated

Location
10, Shelley Way, PLYMOUTH, Devon, PL5 1QE
More Information
Freehold
Shelley Way
Freehold two floor semi-detached house requiring modernisation,
Planing Authority
Plymouth LPA
Sold Price History
10 Sep 2025Unsold Lot Auction House London£155,000
16 Oct 2025Unsold Lot Auction House London£155,000

Interested in this lot?

GO TO THIS LOT

More Listings from this Auctioneer

Other listings nearby