PurplebricksPurplebricks Online Auctions, powered by GOTO Auctions, delivers a modern, transparent way to buy or sell property 24/7 online, fast and with the confidence of a digitally driven auction.
Read more Read more14 Market Street, Ebbw Vale, Gwent, NP23 6HL
PurplebricksPurplebricks Online Auctions, powered by GOTO Auctions, delivers a modern, transparent way to buy or sell property 24/7 online, fast and with the confidence of a digitally driven auction.
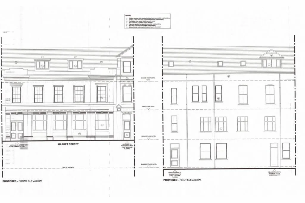
Read more Read more**COMMERCIAL UNIT - POTENTIAL PLANNING FOR 3 RESIDENTIAL APARTMENTS ** A rare opportunity to acquire this formerly known local bank. The seller has planning permission to convert this commercial unit into 3 residential apartments with commercial space to remain on the ground floor. More information on the planning application can be sought via Blaenau Gwent County Borough Council, planning Ref: C/2019/0020. Proposition for a great commercial space on prime high street location with use of basement for additional storage and needs. Across the first and second floor, potential for 3 residential apartments - enquire now for more information. Local Area Just a short walk to the town centre and supermarket and a good primary school is just a few minutes away. The A465 is a five minute drive which links to A470, Cardiff city centre and the M4. This dwelling benefits from being within a stone's thrown away of the Steelworks Regeneration site that boasts the local train station with a direct link to Cardiff alongside state-of-the-art leisure, educational and hospital facilities. Material information: The information above has been provided by the vendor, agent and GOTO Group and may not be accurate. Please refer to the property’s Legal Pack. (You can download this once you have registered your interest against the property). This pack provides material information which will help you make an informed decision before proceeding. It may not yet include everything you need to know so please make sure you do your own due diligence as well. EPC Rating 87 D Comments Energy Performance Certificate (EPCs) An EPC is broadly like the labels provided with domestic appliances such as refrigerators and washing machines. Its purpose is to record how energy efficient a property is as a building. The certificate will provide a rating of the energy efficiency and carbon emissions of a building from A to G, where A is very efficient, and G is inefficient. The data required to allow the calculation of an EPC includes the age and construction of the building, its insulation and heating method. EPCs are produced using standard methods with standard assumptions about energy usage so that the energy efficiency of one building can easily be compared with another building of the same type. The Energy Performance of Buildings Directive (EPBD) requires that all buildings have an EPC when they are marketed for sale or for let, or when houses are newly built. EPCs are valid for 10 years, or until a newer EPC is prepared. During this period the EPC may be made available to buyers or new tenants.